Kaufpreis 159.000 €
Zimmer 2
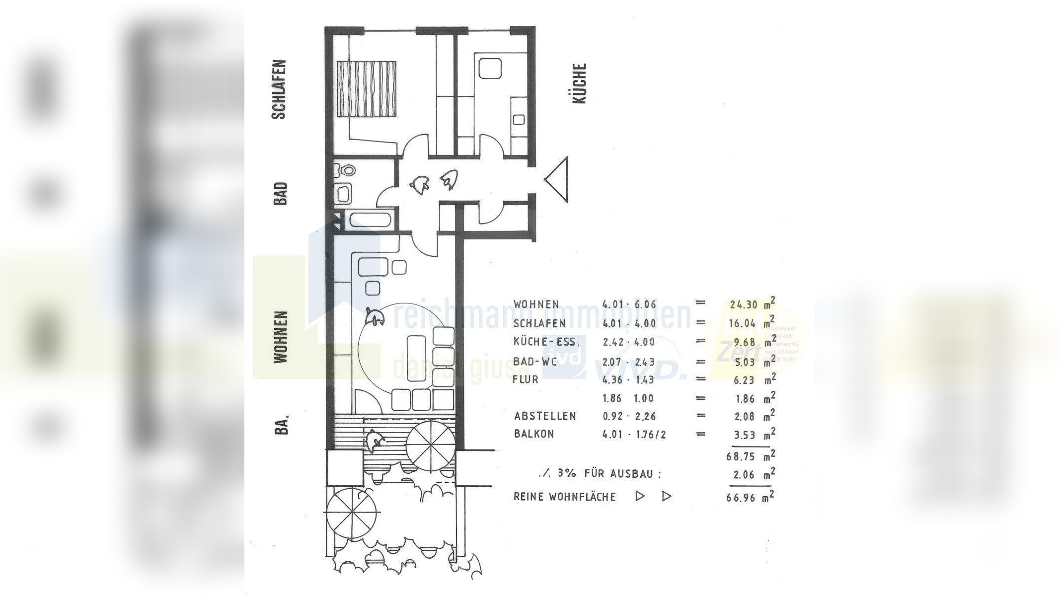
Größe 66 m²
78073 Bad Dürrheim
Objektdaten
Veröffentlicht am: 21. Dezember 2025
Baujahr: 1976
Energieausweis: Liegt bei der Besichtigung vor
Danke! Bitte bestätige Deine E-Mail-Adresse – wir haben Dir soeben eine Mail geschickt.
Es gab ein Problem beim Absenden. Bitte versuche es erneut.
Bitte bestätige Deine E-Mail-Adresse, um Updates zu erhalten.
Objektbeschreibung
Die angebotene 2-Zimmer-Eigentumswohnung befindet sich in einem gepflegten Wohn- und Geschäftshaus in zentraler Lage der Kurstadt Bad Dürrheim. Die Wohnung liegt im Dachgeschoss und profitiert dadurch von einer angenehmen Wohnruhe sowie einem freien Blick über die Innenstadt und die umliegenden Dächer.Die Wohnfläche beträgt rund 67 m² und verteilt sich auf ein großzügig geschnittenes Wohnzimmer, ein separates Schlafzimmer, eine Küche sowie ein Badezimmer. Der Grundriss ist funktional und gut aufgeteilt. Vom Wohnzimmer aus besteht direkter Zugang zur Dachterrasse, die einen Weitblick über die Stadt ermöglicht.Das Schlafzimmer bietet ausreichend Platz für ein Doppelbett und gängige Schranklösungen. Das Badezimmer wurde im Jahr 2003 modernisiert und ist mit Dusche, WC und Waschbecken ausgestattet. Die Ausstattung ist zeitlos und gepflegt.Die Wohnung ist seit 5/2024 an eine ruhige und angenehme Partei vermietet. Der Miete beträgt 660€ kalt inkl. Stellplatz zzgl. NK.Das Hausgeld insgesamt beträgt ca. 280€ inkl. 51€ Rücklagenanteil - Der aktuelle Rücklagenstand beträgt für die Wohnung 3.600€ - Insgesamt 20.600€. Sonderumlagen sind derzeit keine geplant. Zur Wohnung gehören ein eigener Kellerraum sowie ein Außenstellplatz für einen Pkw. Die Einheit eignet sich sowohl zur Eigennutzung, insbesondere für Singles oder Paare, als auch als langfristig gut vermietbare Kapitalanlage in zentraler Lage von Bad Dürrheim..
So funktioniert es
- Alle neuen Anzeigen matchen wir kostenlos mit Deinen Suchparametern.
- Passende Angebote senden wir Dir in einer E-Mail pro Tag.
- Du kannst auch verschiedene Suchen anlegen und Dich jederzeit abmelden. Mehr dazu
Wir haben soeben eine E-Mail mit Deinem Suchauftrag an Dich geschickt. – Klicke in dieser Mail auf den Bestätigungslink und schon geht's los. Prüfe ggf. auch Deinen Spamordner.
Es gab ein Problem beim Absenden Deiner E-Mail-Adresse. Bitte versuche es erneut.
WARNUNG: Bitte bestätige Deine E-Mail-Adresse, um regelmäßige Updates zu erhalten.