Objektdaten
Objektbeschreibung
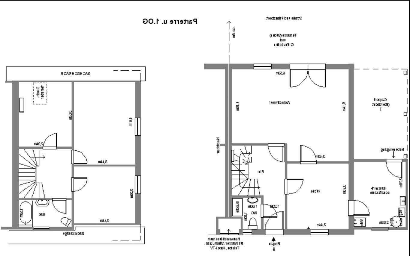
Zum Verkauf steht dieses charmante, freistehende Einfamilienhaus auf einem großzügigen Grundstück von 738 m². Mit einer Wohnfläche von 116 m² bietet die Immobilie komfortables Wohnen auf einer Ebene - ideal für Familien, Paare oder alle, die barrierearmes Wohnen schätzen.Die Raumaufteilung überzeugt durch ihre Funktionalität:- Drei gemütliche Schlafzimmer- Großzügiges Wohn- und Esszimmer mit viel Platz für gemeinsame Stunden- Helle Küche- Gäste-WC- Tageslichtbad mit FensterDer teilunterkellerte Bereich bietet zusätzlichen Stauraum und vielseitige Nutzungsmöglichkeiten. Eine Garage direkt am Haus sorgt für bequemes Parken. Der weitläufige Garten besticht durch seine hervorragende Südwestausrichtung - perfekt für Sonnenliebhaber und Gartenfreunde.Das gedämmte Dach sowie überwiegend doppelverglaste Kunststofffenster runden das attraktive Gesamtangebot ab und tragen zu einem angenehmen Wohnklima bei. Dieses Einfamilienhaus vereint gemütliches Wohnen, viel Potenzial und ein wunderschönes Grundstück - überzeugen Sie sich selbst!So funktioniert es
- Alle neuen Anzeigen matchen wir kostenlos mit Deinen Suchparametern.
- Passende Angebote senden wir Dir in einer E-Mail pro Tag.
- Du kannst auch verschiedene Suchen anlegen und Dich jederzeit abmelden. Mehr dazu




