Kaufpreis 1.890.000 €
Zimmer 4
Größe 136 m²
81927 München
Objektdaten
Veröffentlicht am: 22. Dezember 2025
Energieausweis: Liegt bei der Besichtigung vor
Danke! Bitte bestätige Deine E-Mail-Adresse – wir haben Dir soeben eine Mail geschickt.
Es gab ein Problem beim Absenden. Bitte versuche es erneut.
Bitte bestätige Deine E-Mail-Adresse, um Updates zu erhalten.
Objektbeschreibung
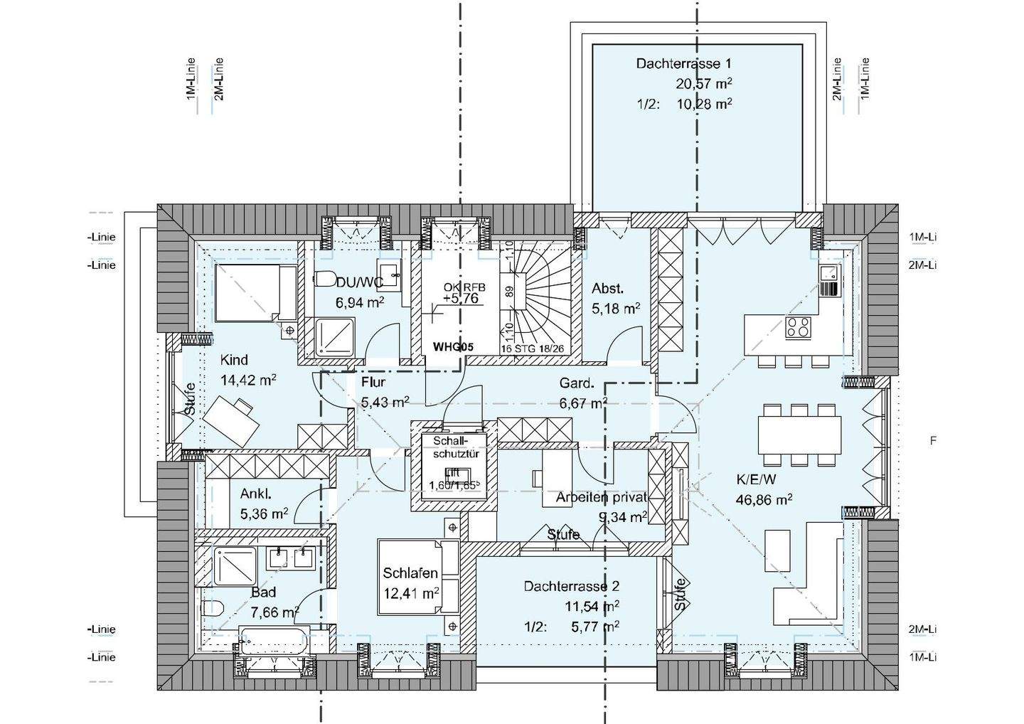
In der Undinestraße entsteht eine energieeffiziente, kleine Wohnanlage mit nur 5 Einheiten, Duplex-Garage und Carport. Die 3- bis 4-Zimmer-Wohnungen stehen für gehobenes Wohnen in attraktiver Lage Bogenhausens. Wohnung 1 im Erdgeschoss: Wohn-/Nutzfläche 102,07 m²Wohnung 2 im Erdgeschoss: Wohn-/Nutzfläche 128,75 m²Wohnung 3 im 1. OG: VERKAUFTWohnung 4 im 1. OG: VERKAUFTWohnung 5 im Dachgeschoss: Wohn-/Nutzfläche 167,17 m²Neben modernen Grundrissen und offener Küche besticht das Objekt durch Terrassen und Balkone mit Süd- bzw. Südwestausrichtung. Die Dachgeschosswohnung verfügt über zwei Dachterrassen. Als besonderes Ausstattungshighlight verfügen die beiden Erdgeschoss-Wohnungen über eine wohnungsinterne Treppe, welche in das Untergeschoss führt. Hier ist u.a. ein Waschraum untergebracht, welcher mit einem zusätzlichen WC, Waschbecken und einer bodengleichen Dusche ausgestattet. Auch eine Waschmaschine kann hier untergebracht werden. Energieeffizienz und Nachhaltigkeit werden großgeschrieben:Unser Gebäude erfüllt die Anforderungen an den KFW-Effizienzhaus 40 Standard. Zudem wird das Qualitätssiegel Nachhaltiges Gebäude (QNG) angestrebt.Für die Zukunft gewappnet:Das Objekt wird mit Mineralfaser gefüllten Ziegeln mit einer Stärke von 36,5 cm errichtet, welcher besonders langlebige gedämmte und nicht zuletzt schallisolierte Fassaden garantiert. Die Beheizung erfolgt über eine Grundwasserwärmepumpe. Weitere energetische Highlights:Auf dem Dach unseres Baukörpers ist eine Photovoltaik-Anlage installiert. Der erzeugte Strom steht den Nutzern als Allgemeinstrom zur Verfügung.Eine von der Außenfassade aus nicht sichtbare Lüftungsanlage mit integrierter Wärmerückgewinnung sorgt für ein exzellentes Raumklima und entlastet die Heizkosten.Jetzt vom Förderkredit der KfW-Bank profitieren:Die KfW-Bank fördert den Neubau und den Erstkauf klimafreundlicher Wohngebäude und Eigentumswohnungen und gewährt Ihnen einen Förderkredit von bis zu 150.000 € je Wohnung (aktueller Zinssatz effektiv von lediglich 0,82 %). Profitieren Sie durch den Erwerb unserer nachhaltigen Eigentumswohnungen von reduzierten Zinsen und steigern Sie somit Ihre Rendite.Das perfekte Zuhause zum Wohlfühlen und Genießen. Die Fertigstellung ist geplant für voraussichtlich Sommer 2027.
So funktioniert es
- Alle neuen Anzeigen matchen wir kostenlos mit Deinen Suchparametern.
- Passende Angebote senden wir Dir in einer E-Mail pro Tag.
- Du kannst auch verschiedene Suchen anlegen und Dich jederzeit abmelden. Mehr dazu
Wir haben soeben eine E-Mail mit Deinem Suchauftrag an Dich geschickt. – Klicke in dieser Mail auf den Bestätigungslink und schon geht's los. Prüfe ggf. auch Deinen Spamordner.
Es gab ein Problem beim Absenden Deiner E-Mail-Adresse. Bitte versuche es erneut.
WARNUNG: Bitte bestätige Deine E-Mail-Adresse, um regelmäßige Updates zu erhalten.