Objektdaten
Objektbeschreibung
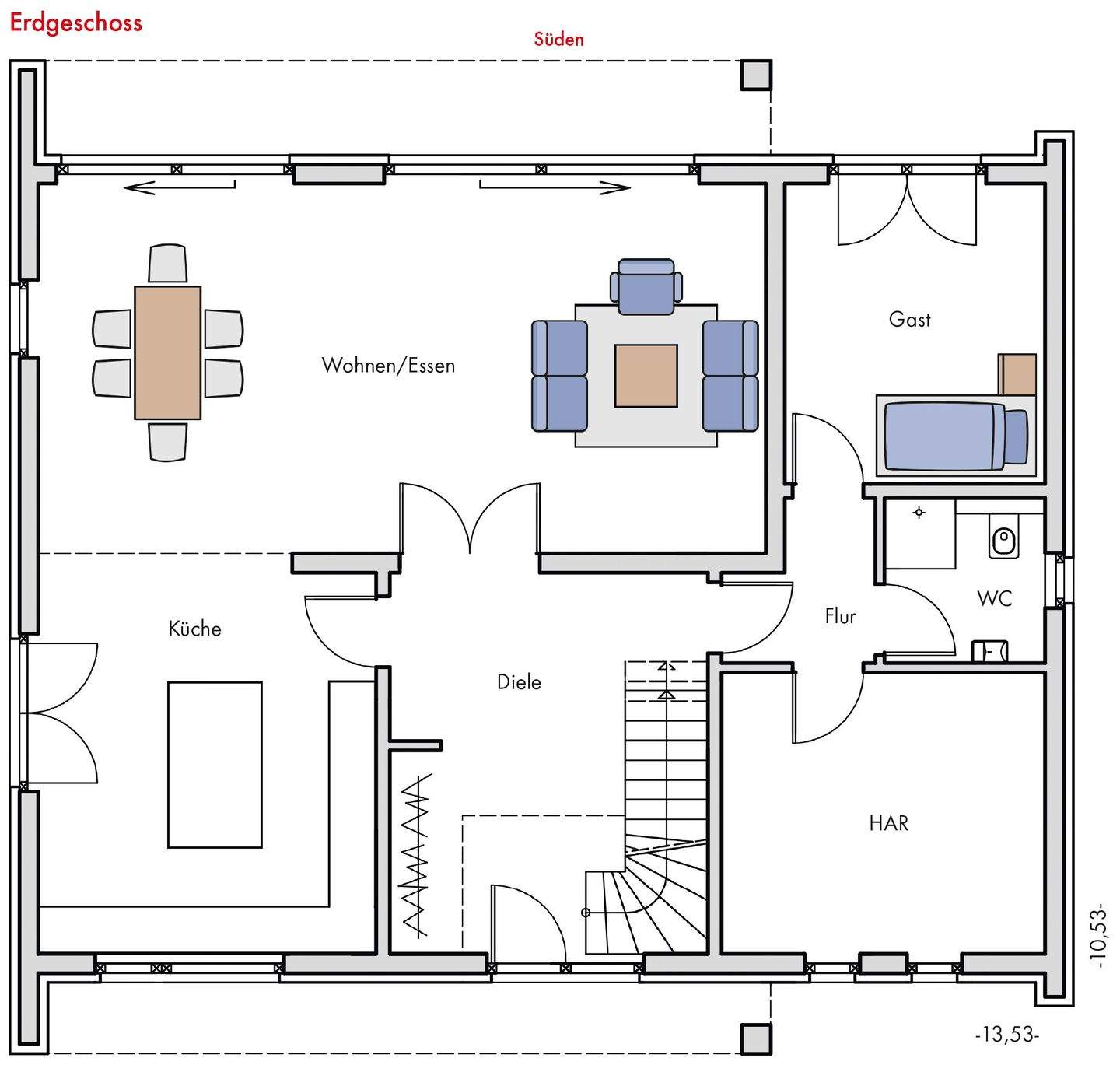
Die abgebildete Villa passt sich sehr schön in die ländliche Umgebung ein und hebt sich trotzdem durch ihr herschaftliches Äußeres positiv ab .So funktioniert es
- Alle neuen Anzeigen matchen wir kostenlos mit Deinen Suchparametern.
- Passende Angebote senden wir Dir in einer E-Mail pro Tag.
- Du kannst auch verschiedene Suchen anlegen und Dich jederzeit abmelden. Mehr dazu



