Kaufpreis 502.900 €
Zimmer 5
Größe 133 m²
22043 Hamburg
Objektdaten
Veröffentlicht am: 25. Dezember 2025
Energieausweis: Liegt bei der Besichtigung vor
Danke! Bitte bestätige Deine E-Mail-Adresse – wir haben Dir soeben eine Mail geschickt.
Es gab ein Problem beim Absenden. Bitte versuche es erneut.
Bitte bestätige Deine E-Mail-Adresse, um Updates zu erhalten.
Objektbeschreibung
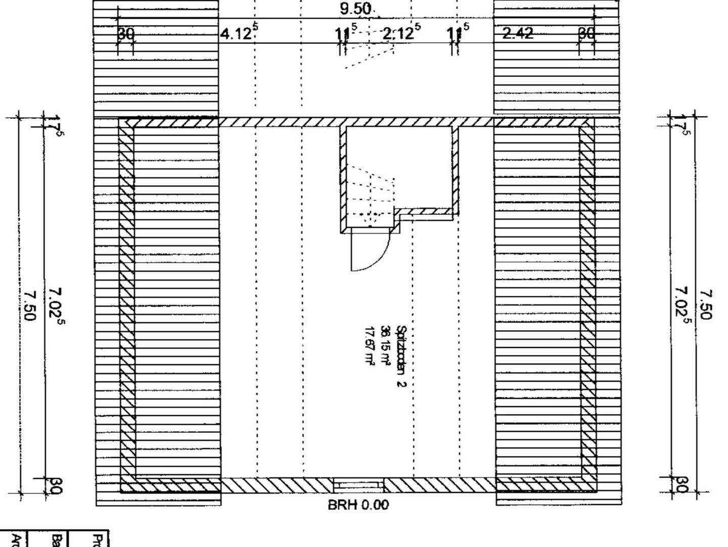
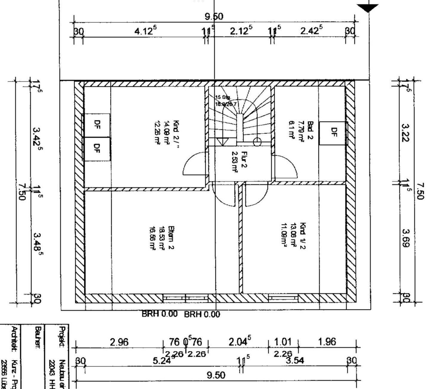
Haus Nr. 2: Willkommen in Ihrem neuen Zuhause!Diese charmanten Doppelhaushälften bieten ein komfortables, modernes und stilvolles Wohnambiente.Jede Einheit verfügt über insgesamt 5 Zimmer und eine großzügige Wohnfläche von 133,62 m² auf einem ca. 421,50 m² großen Grundstück. Damit haben Sie ausreichend Raum, um Ihre individuellen Wohnwünsche zu verwirklichen.Der offene Grundriss schafft eine einladende Atmosphäre und verbindet Wohnen, Essen und Kochen auf harmonische Weise. Die moderne, offene Küche bietet einen direkten Zugang zur sonnigen Terrasse und lädt zu entspannten Stunden im Freien ein.Die Schlafzimmer sind großzügig geschnitten und bieten vielfältige Gestaltungsmöglichkeiten.Bei dem Projekt handelt es sich um einen Neubau, der durch eine durchdachte Raumaufteilung, hochwertige Materialien und eine zeitgemäße Architektur überzeugt.Die 133,62 m² Wohnfläche sind nach DIN 277 berechnet und können individuell sowie kostenfrei geplant werden. Baurechtlich ist eine Erweiterung um weitere ca. 10 m² möglich, die auf Wunsch gegen Aufpreis realisiert werden kann.Kaufpreis:Hauspreis ab 502.900,00 € zzgl. 90.800,00 € Baunebenkosten sowie zzgl. Kaufnebenkosten.Im Kaufpreis nicht enthalten sind Malerarbeiten, Fliesen- und Bodenbeläge. Diese können jedoch ganz oder teilweise optional gegen Aufpreis übernommen werden.Doppelhaus Nr. 1 verfügt über einen Süd-West-Garten. Doppelhaus Nr. 2 profitiert von seiner nach hinten versetzten Lage und liegt nicht direkt an der Straße.
So funktioniert es
- Alle neuen Anzeigen matchen wir kostenlos mit Deinen Suchparametern.
- Passende Angebote senden wir Dir in einer E-Mail pro Tag.
- Du kannst auch verschiedene Suchen anlegen und Dich jederzeit abmelden. Mehr dazu
Wir haben soeben eine E-Mail mit Deinem Suchauftrag an Dich geschickt. – Klicke in dieser Mail auf den Bestätigungslink und schon geht's los. Prüfe ggf. auch Deinen Spamordner.
Es gab ein Problem beim Absenden Deiner E-Mail-Adresse. Bitte versuche es erneut.
WARNUNG: Bitte bestätige Deine E-Mail-Adresse, um regelmäßige Updates zu erhalten.