Kaufpreis 929.000 €
23774 Heiligenhafen
Objektdaten
Veröffentlicht am: 26. Dezember 2025
Danke! Bitte bestätige Deine E-Mail-Adresse – wir haben Dir soeben eine Mail geschickt.
Es gab ein Problem beim Absenden. Bitte versuche es erneut.
Bitte bestätige Deine E-Mail-Adresse, um Updates zu erhalten.
Objektbeschreibung
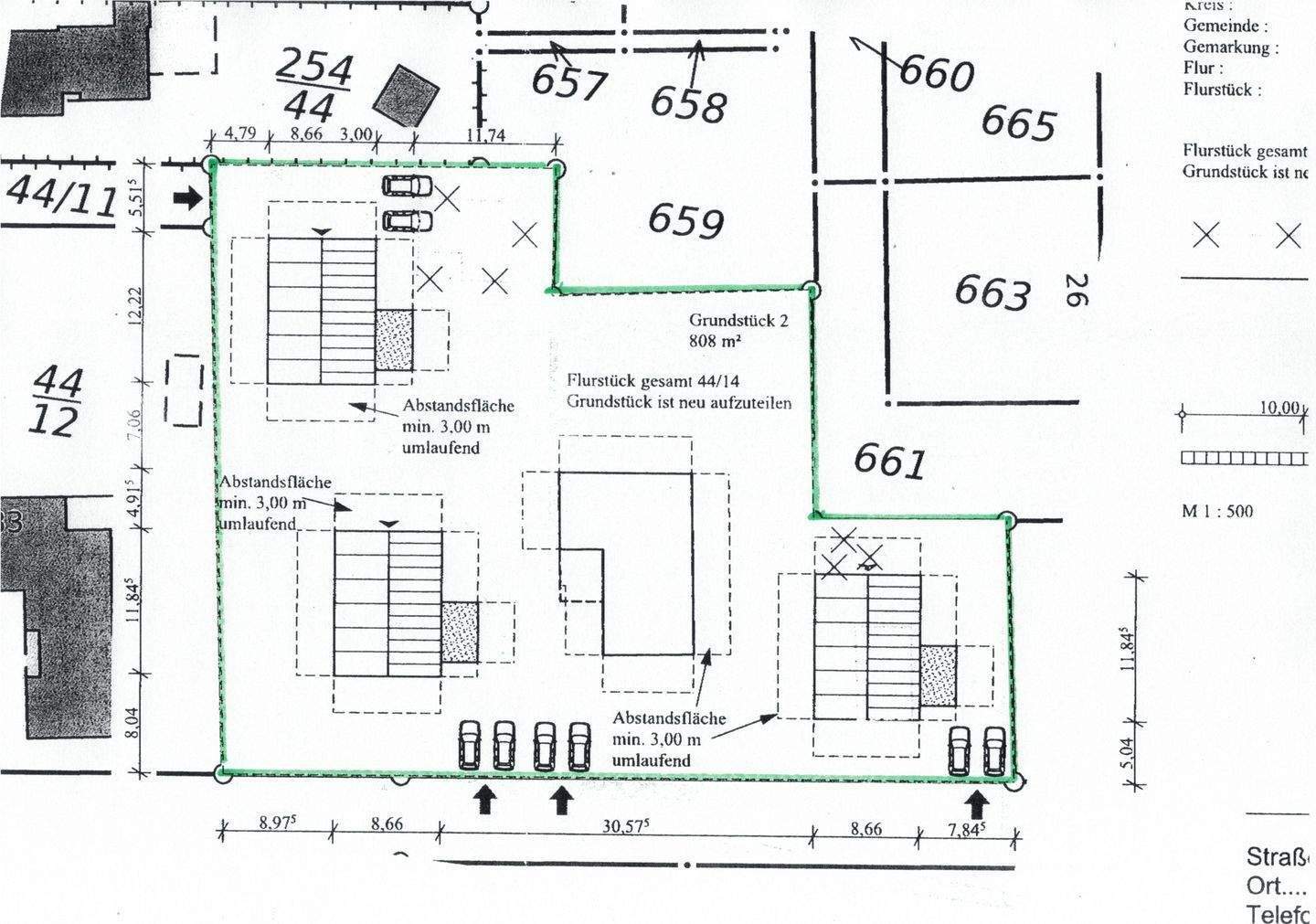
Traumgrundstück mit Seeblick auf die Ostsee.Viel Potenzial in guter Lage von Heiligenhafen.Dieses außergewöhnliche Grundstück in bevorzugter Lage von Heiligenhafen bietet eine seltene Gelegenheit für Investoren, Bauherren oder Familien mit Weitblick. In unmittelbarer Nähe zur Ostsee gelegen, eröffnet sich Ihnen eine Neubaumöglichkeit.Es kann ein Mehrfamilienhaus, oder mehrere Einfamilienhäuser gebaut werden.Gebaut werden darf nach §34 BauGB nachbarschaftliche Bebauung Eingeschossig mit Keller (Souterrain)Besonderheiten auf einen Blick:•Traumlage mit Seeblick•Nähe zum Strand, Hafen und Stadtzentrum•Attraktive InvestitionsmöglichkeitFazit:Ob als Projekt für den Eigenbedarf, zur Vermietung oder als Kapitalanlage – dieses Grundstück bietet eine außergewöhnliche Kombination aus Lage, Größe und Entwicklungspotenzial. Verwirklichen Sie Ihren Traum vom Leben am Meer – in Heiligenhafen.Siehe Skizze
So funktioniert es
- Alle neuen Anzeigen matchen wir kostenlos mit Deinen Suchparametern.
- Passende Angebote senden wir Dir in einer E-Mail pro Tag.
- Du kannst auch verschiedene Suchen anlegen und Dich jederzeit abmelden. Mehr dazu
Wir haben soeben eine E-Mail mit Deinem Suchauftrag an Dich geschickt. – Klicke in dieser Mail auf den Bestätigungslink und schon geht's los. Prüfe ggf. auch Deinen Spamordner.
Es gab ein Problem beim Absenden Deiner E-Mail-Adresse. Bitte versuche es erneut.
WARNUNG: Bitte bestätige Deine E-Mail-Adresse, um regelmäßige Updates zu erhalten.