Objektdaten
Objektbeschreibung
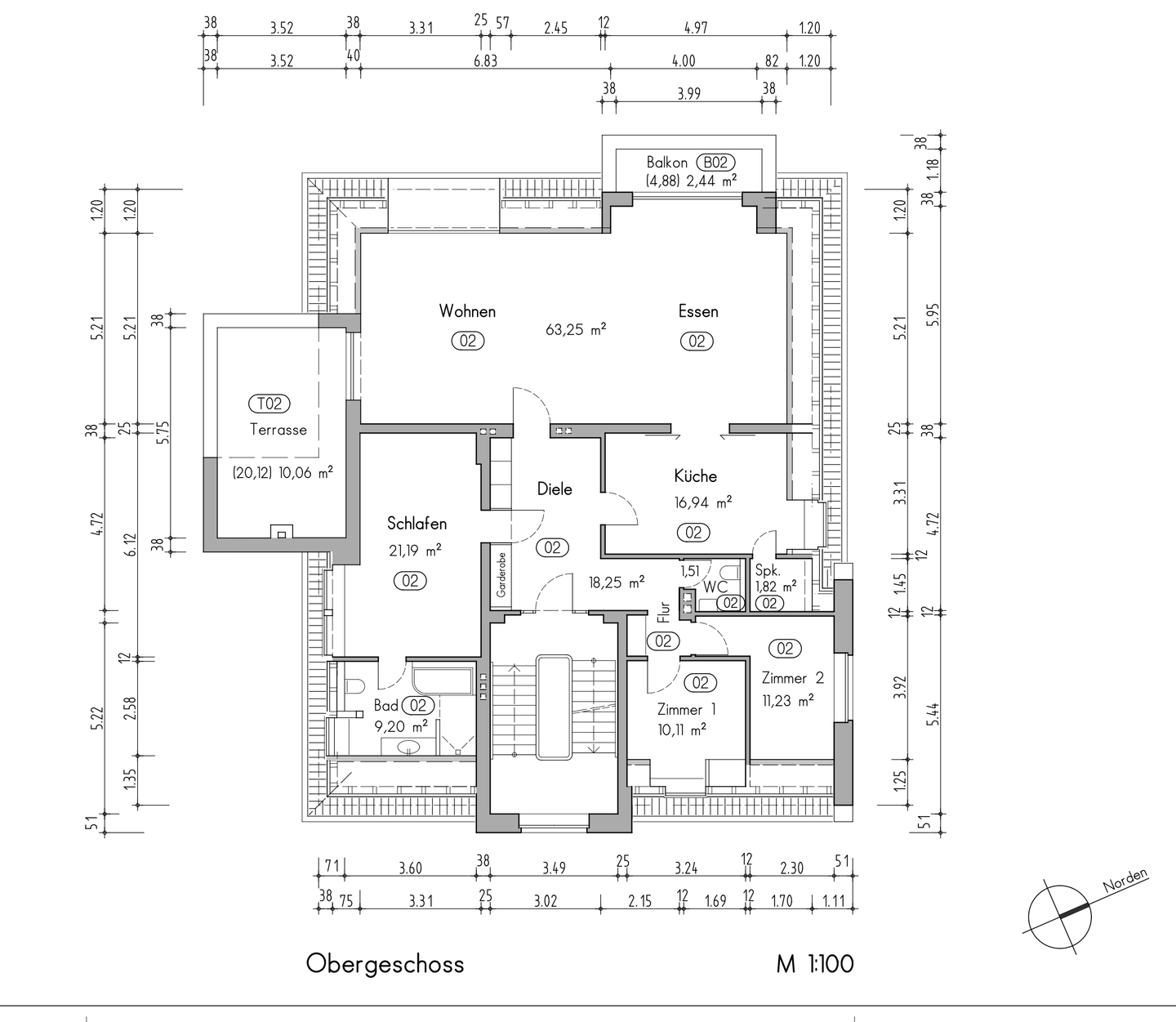
Diese exklusive 5-Zimmer-Wohnung im 2. OG verfügt über 2 moderne Tageslichtbäder mit Dusche und Wanne, 4 Zimmer und ein großzügiger offener Wohn- und Essbereich, das ganze mit einer wunderschönen großen Terrasse ausgestattet.Bodentiefe Fenster mit einer 3 Fach-Isolierverglasung, Fußbodenheizung, Sprechanlage mit Videokamera gehören selbstverständlich zur Ausstattung der Wohnung. Bei der Ausführung wurde durchgängig Wert auf Qualität und Sicherheit gelegt. Dem Wunsch nach klaren Linien und wohnlichem Ambiente wurde in harmonischer Weise entsprochen.Erstklassige Ausstattung und hochwertige Materialien sorgen für Wohnkomfort und Lebensqualität.Ein Stellplatz kann für 25 € / Monat angemietet werdensowie ein Tiefgaragenstellplatz für 100 €.2 weitere Wohnungen sind im Haus noch verfügbar!Sprechen Sie uns an.Vereinbaren Sie Ihren persönlichen Besichtigungstermin für diese exklusive Immobilie.Wir freuen uns auf ihre Anfrage.So funktioniert es
- Alle neuen Anzeigen matchen wir kostenlos mit Deinen Suchparametern.
- Passende Angebote senden wir Dir in einer E-Mail pro Tag.
- Du kannst auch verschiedene Suchen anlegen und Dich jederzeit abmelden. Mehr dazu





