Kaufpreis 393.000 €
48341 Altenberge
Objektdaten
Veröffentlicht am: 30. Dezember 2025
Energieausweis: Liegt bei der Besichtigung vor
Danke! Bitte bestätige Deine E-Mail-Adresse – wir haben Dir soeben eine Mail geschickt.
Es gab ein Problem beim Absenden. Bitte versuche es erneut.
Bitte bestätige Deine E-Mail-Adresse, um Updates zu erhalten.
Objektbeschreibung
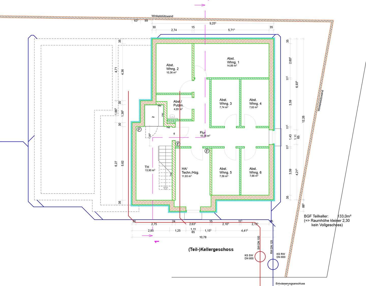
Errichtung von 6 Eigentumswohnung Die Wohnungen im Erdgeschoss sowie die Wohnungen im Staffelgeschoss sind bereits verkauft.Die Vermittlung ist für den Käufer provisonsfreiDie Fa. Kling Immobilien GmbH plant den Neubau von 6 Eigentumswohnungen im Gutenberg Quartier in Altenberge.Die Wohnungen im Erdgeschoss und 1. Obergeschoss verfügen über einen geräumigen offenen Wohnbereich mit einer Küche und einem Abstellraum. Der Wohnbereich ist hell und einladend gestaltet, mit großen Fenstern, die viel natürliches Licht hereinlassen. Das Elternschlafzimmer bietet genügend Platz für ein großes Bett und einen Kleiderschrank. Ein weiteres Zimmer kann als Schlafraum oder Büro genutzt werden.Die Wohnungen im Staffelgeschoss sind mit ca. 65 qm etwas kleiner und verfügen nicht über ein zweites Zimmer. Alle Wohnungen haben eine Terrasse, einen Balkon bzw. eine Dachterrasse im Staffelgeschoss. Die Wohnungen im Staffelgeschoss sind bereits verkauft.Für jede Wohnung steht ein Abstellraum im Teilkeller zur Verfügung.Jeder Wohnung ist ein Stellplatz zugeordnet.Das Wohnhaus wird als KFW 40 Effizienzhaus mit QNG Qualitätssiegel errichtet. Zur Ausstattung gehören 3-fach Verglasungen, Fußbodenheizungen, bodengleiche Duschen und Handtuchheizkörper. Weitere Details finden Sie in der ausführlichen Baubeschreibung. Bei den Angaben zur Abschreibung handelt es sich um unverbindliche Hinweise. Rechtssichere Auskünfte kann nur das Finanzamt oder der Steuerberater geben.
So funktioniert es
- Alle neuen Anzeigen matchen wir kostenlos mit Deinen Suchparametern.
- Passende Angebote senden wir Dir in einer E-Mail pro Tag.
- Du kannst auch verschiedene Suchen anlegen und Dich jederzeit abmelden. Mehr dazu
Wir haben soeben eine E-Mail mit Deinem Suchauftrag an Dich geschickt. – Klicke in dieser Mail auf den Bestätigungslink und schon geht's los. Prüfe ggf. auch Deinen Spamordner.
Es gab ein Problem beim Absenden Deiner E-Mail-Adresse. Bitte versuche es erneut.
WARNUNG: Bitte bestätige Deine E-Mail-Adresse, um regelmäßige Updates zu erhalten.