Kaufpreis 200.000 €
Zimmer 3
Größe 88 m²
85053 Ingolstadt
Objektdaten
Veröffentlicht am: 30. Dezember 2025
Energieausweis: Liegt bei der Besichtigung vor
Danke! Bitte bestätige Deine E-Mail-Adresse – wir haben Dir soeben eine Mail geschickt.
Es gab ein Problem beim Absenden. Bitte versuche es erneut.
Bitte bestätige Deine E-Mail-Adresse, um Updates zu erhalten.
Objektbeschreibung
Es entsteht ein modernes Neubaukonzept mit hochwertigen, in Deutschland gefertigten Holzmodulhäusern. Die vielseitigen Cubes verbinden nachhaltige Bauweise, flexible Planung und maximale Mobilität. Sie sind in unterschiedlichen Größen und Varianten erhältlich – vom kompakten Modul bis zur großzügigen Wohnlösung – und können schlüsselfertig umgesetzt oder individuell geplant werden.
Durch die Montage auf Schraubfundamenten sind die Cubes nicht fest im Boden verankert, besonders ressourcenschonend und jederzeit versetzbar. Das Grundstück wird gepachtet statt gekauft, wodurch ein flexibles Nutzungskonzept mit geringerer langfristiger Bindung entsteht.
Ob als modernes Wohnhaus, stilvolles Ferienhaus, Büro oder flexible Wohn- und Arbeitslösung – die Cubes überzeugen durch ihre modulare Bauweise, hochwertige Materialien und ein zeitloses, modernes Design.
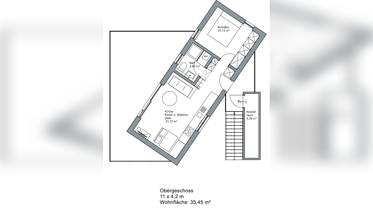
+++ Möglicher Grundriss +++
Das Erdgeschoss ist als eigenständige Wohnung konzipiert — ideal für Singles oder Paare, die Großzügigen Wohnraum schätzen. Ein praktischer Stauraum unter der Treppe bietet Platz für Dinge, die
nicht täglich benötigt werden.
Das Obergeschoss wurde um ca. 40 Grad gedreht, was der Architektur eine moderne und dynamische Optik verleiht. Es folgt der klassische 11-m-Cube-Grundriss, welcher sich für die Vermietung eignet. Die durch die Drehung entstehende Außenfläche wird als Terrasse genutzt und kann mit einer Markise oder einer festen Überdachung ergänzt werden.
Dieses Konzept zeigt eine mögliche individuelle Cube-Lösung und stellt kein Standardmodell dar.
Eckdaten:
Quadratmeter: 88,70 m²
Die Terrasse fließt zu 50 % in die Berechnung der Wohnfläche ein.
Probewohnen gewünscht?
Erleben Sie das Wohngefühl unserer Cubes ganz persönlich.
Buchen Sie eine Übernachtung in einem unserer Mustercubes in Niederfeld und überzeugen Sie sich selbst von Design, Qualität und Atmosphäre.
?? Jetzt Probewohnen buchen:
https://www.booking.com/hotel/de/wohnen-im-mobilen-haus.de.html
So funktioniert es
- Alle neuen Anzeigen matchen wir kostenlos mit Deinen Suchparametern.
- Passende Angebote senden wir Dir in einer E-Mail pro Tag.
- Du kannst auch verschiedene Suchen anlegen und Dich jederzeit abmelden. Mehr dazu
Wir haben soeben eine E-Mail mit Deinem Suchauftrag an Dich geschickt. – Klicke in dieser Mail auf den Bestätigungslink und schon geht's los. Prüfe ggf. auch Deinen Spamordner.
Es gab ein Problem beim Absenden Deiner E-Mail-Adresse. Bitte versuche es erneut.
WARNUNG: Bitte bestätige Deine E-Mail-Adresse, um regelmäßige Updates zu erhalten.