Warmmiete 536 €
Zimmer 3
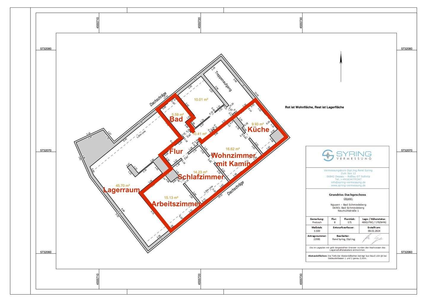
Größe 67 m²
06905 Bad Schmiedeberg
Objektdaten
Veröffentlicht am: 31. Dezember 2025
Frei ab: 27. Dezember 2025
Kaltmiete 400 €
Baujahr: 1901
Energieausweis: Liegt bei der Besichtigung vor
Danke! Bitte bestätige Deine E-Mail-Adresse – wir haben Dir soeben eine Mail geschickt.
Es gab ein Problem beim Absenden. Bitte versuche es erneut.
Bitte bestätige Deine E-Mail-Adresse, um Updates zu erhalten.
Objektbeschreibung
Die angebotene Dachgeschosswohnung hat 3 Zimmer, Küche, Bad. Das Wohnzimmer ist mit einem gemütlichen Kamin ausgestattet. Die letzte Sanierung hat in 2024/ 2025 stattgefunden. Hier wurde im DG das Bad saniert und eine neue Gasetageneizung der Marke Wolf eingebaut.Die Fenster werden demnächst ausgetauscht in neue moderne.Das Gebäude ist vollunterkellert und hat ausserdem jede Menge Nebengelaß.
So funktioniert es
- Alle neuen Anzeigen matchen wir kostenlos mit Deinen Suchparametern.
- Passende Angebote senden wir Dir in einer E-Mail pro Tag.
- Du kannst auch verschiedene Suchen anlegen und Dich jederzeit abmelden. Mehr dazu
Wir haben soeben eine E-Mail mit Deinem Suchauftrag an Dich geschickt. – Klicke in dieser Mail auf den Bestätigungslink und schon geht's los. Prüfe ggf. auch Deinen Spamordner.
Es gab ein Problem beim Absenden Deiner E-Mail-Adresse. Bitte versuche es erneut.
WARNUNG: Bitte bestätige Deine E-Mail-Adresse, um regelmäßige Updates zu erhalten.