Objektdaten
Objektbeschreibung
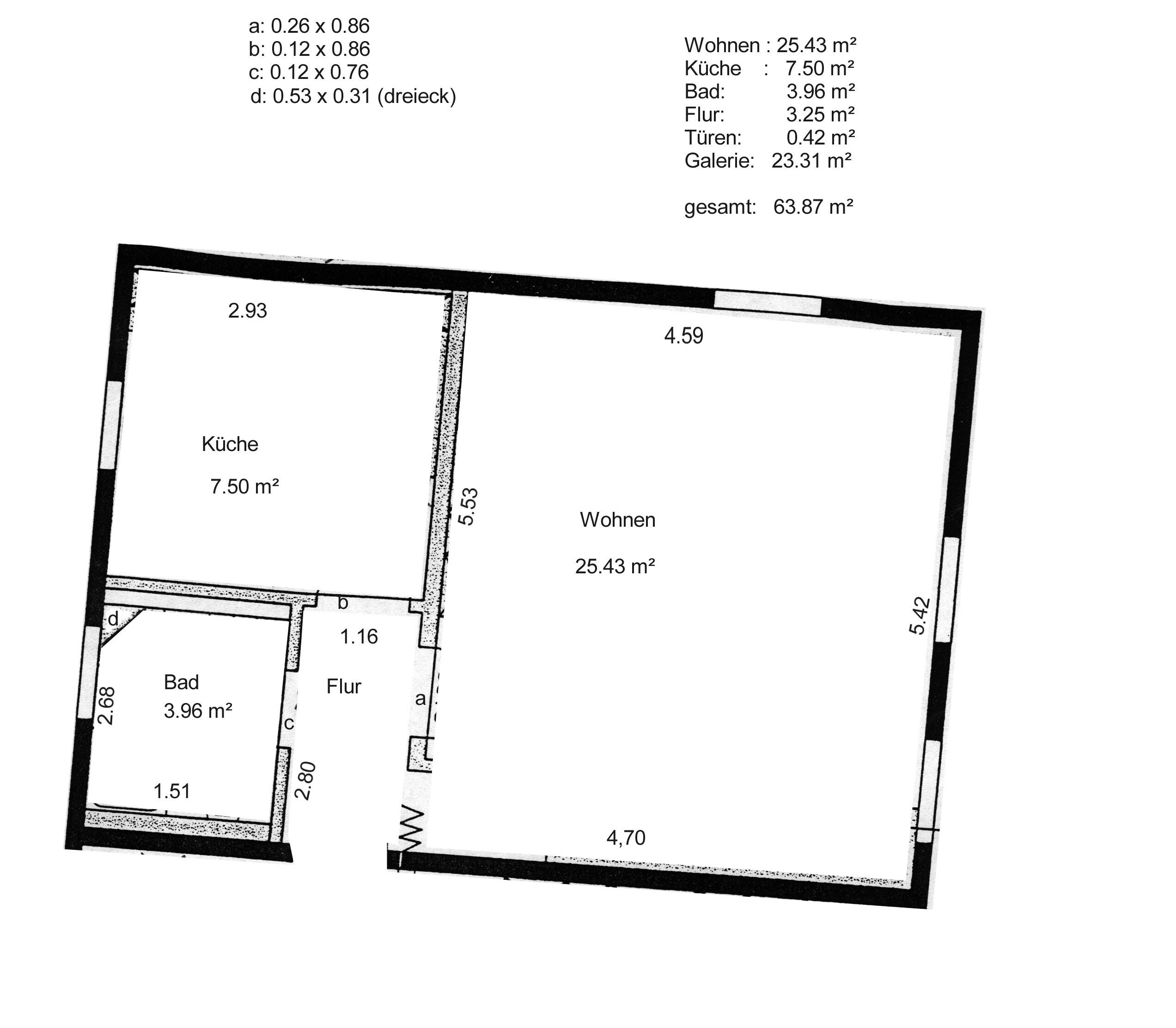
Objektbeschreibung hochwertige Dach- und Fassadendämmung, dadurch geringere Heizkosten! Raumaufteilung helle, lichtdurchflutete Wohnung Küche separatSo funktioniert es
- Alle neuen Anzeigen matchen wir kostenlos mit Deinen Suchparametern.
- Passende Angebote senden wir Dir in einer E-Mail pro Tag.
- Du kannst auch verschiedene Suchen anlegen und Dich jederzeit abmelden. Mehr dazu





