Objektdaten
Objektbeschreibung
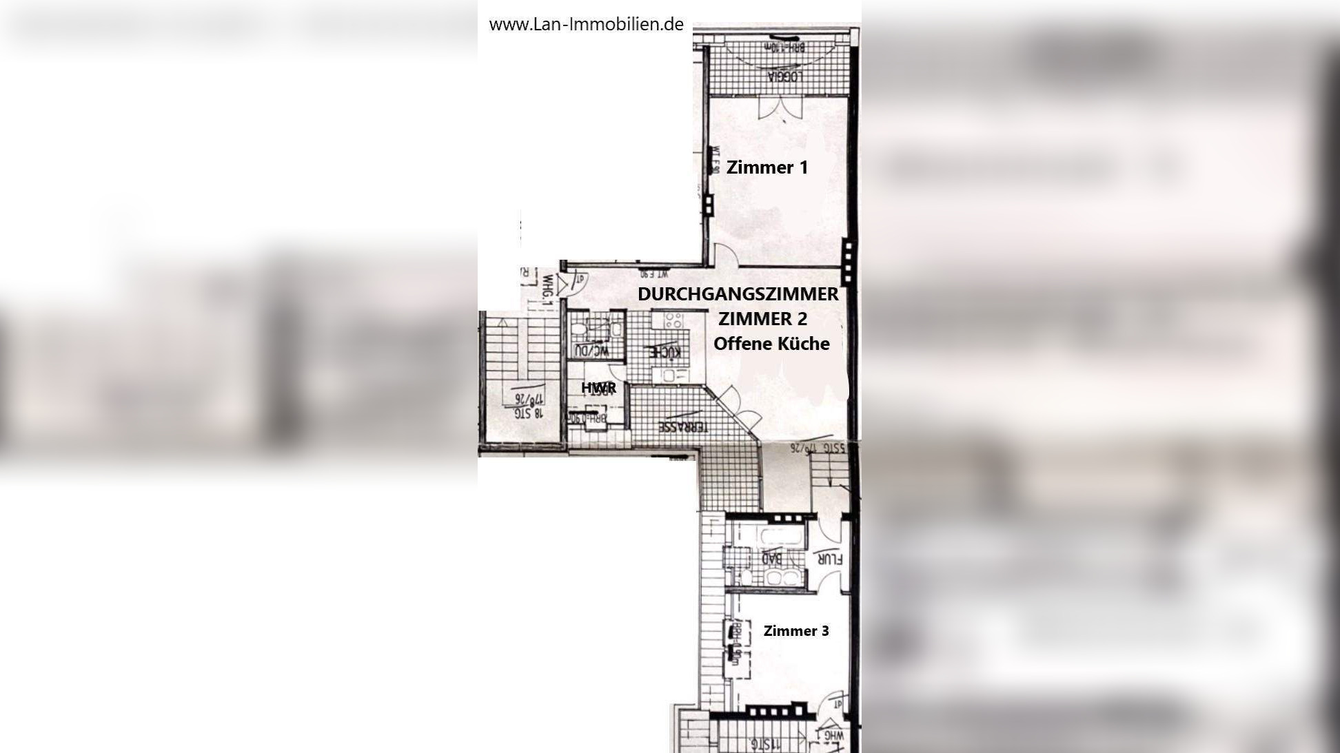
Das Wohn- und Geschäftshaus ist ein sanierter Altbau, bestehend aus Vorderhaus, zwei Seitenflügeln und einem Quergebäude. Die Wohnung befindet sich im Dachgeschoss vom Vorderhaus.Der Aufzug hält nur auf jeder halben Etage und muss noch eine halbe Treppe hoch zur Wohnung laufen.Ähnliche Angebote
So funktioniert es
- Alle neuen Anzeigen matchen wir kostenlos mit Deinen Suchparametern.
- Passende Angebote senden wir Dir in einer E-Mail pro Tag.
- Du kannst auch verschiedene Suchen anlegen und Dich jederzeit abmelden. Mehr dazu





