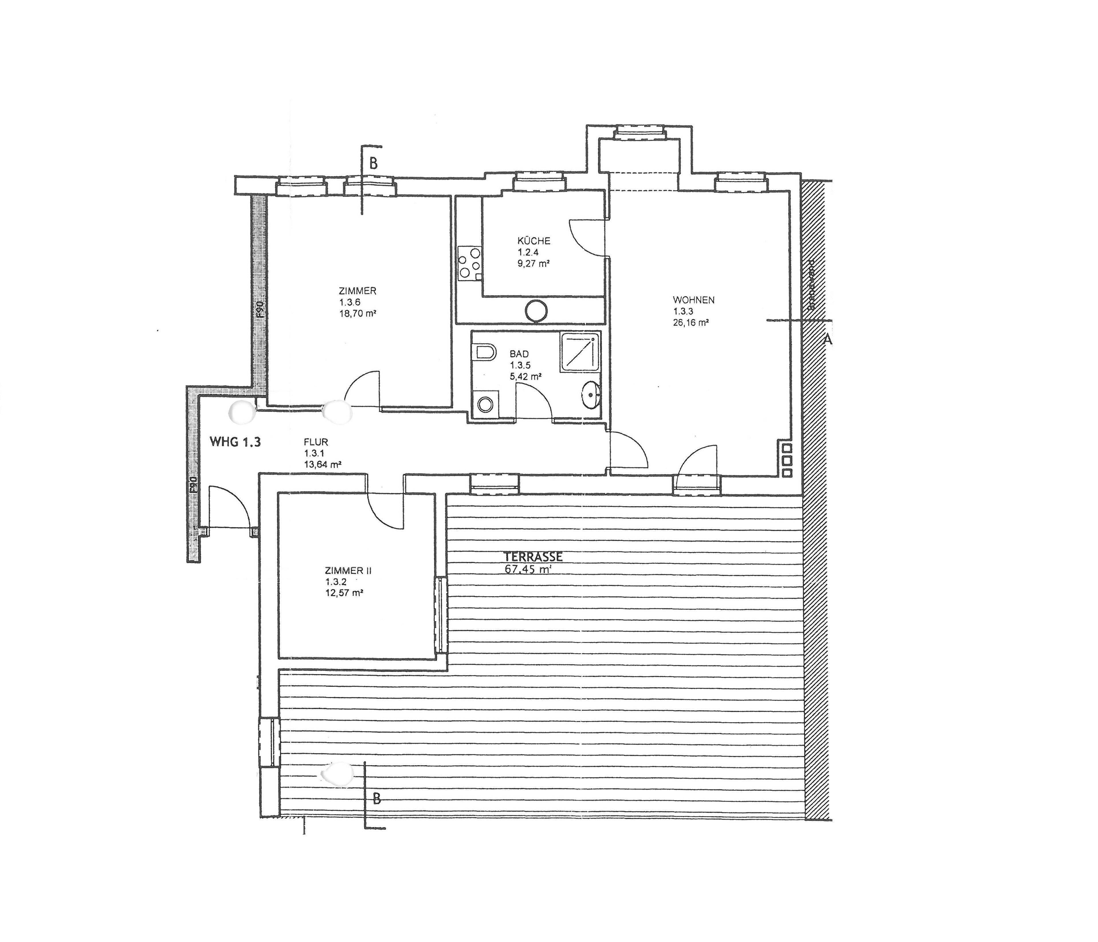
Objektdaten
Objektbeschreibung
Die Albrechtstraße 21 ist im beliebten Stadtteil Dessau-Nord gelegen. Von hier gelangt man in nur wenigen Minuten ins Zentrum der Stadt und Sie haben Zugang zu verschiedenen Einkaufsmöglichkeiten, öffentlichen Verkehrsmitteln und zum Bahnhof. Auch das Umweltbundesamt befindet sich in direkter Nachbarschaft und ist in wenigen Gehminuten zu erreichen.Ebenfalls ist der Schillerpark fußläufig problemlos erreichbar und lädt mit vielen Grünflächen zu sportlichen Betätigung und/oder Entspannung ein. Auch bei Kindern ist der Schillerpark mit seinem großen Spielplatz und dem angrenzenden Fußballplatz äußerst beliebt.Ähnliche Angebote
So funktioniert es
- Alle neuen Anzeigen matchen wir kostenlos mit Deinen Suchparametern.
- Passende Angebote senden wir Dir in einer E-Mail pro Tag.
- Du kannst auch verschiedene Suchen anlegen und Dich jederzeit abmelden. Mehr dazu





