Kaufpreis 995.000 €
78465 Konstanz
Objektdaten
Veröffentlicht am: 8. Januar 2026
Danke! Bitte bestätige Deine E-Mail-Adresse – wir haben Dir soeben eine Mail geschickt.
Es gab ein Problem beim Absenden. Bitte versuche es erneut.
Bitte bestätige Deine E-Mail-Adresse, um Updates zu erhalten.
Objektbeschreibung
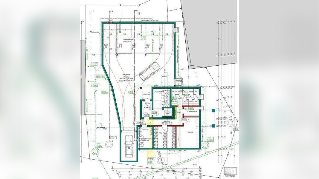
Auf dem Grundstück befinden sich zwei ehem. abbruchreife Bauernhäuser mit Scheune.Es liegt eine Baugenehmigung zum Neubau von 9 Wohnungen und 9 Tiefgaragenplätzen vor.Die 9 Wohnungen teilen sich in drei Geschosse (Erdgeschoss, Obergeschoss und Dachgeschoss) auf.Aufgrund der Lage im alten Dorfkern muss der Neubau mit einem traditionellen Satteldach erstellt werden.Die gesamte genehmigte Wohnfläche beträgt ca. 797,66 m².Diese teilt sich auf in folgende Wohnungen:Wohnung Nr. 1: 3-Zimmer - ca. 76,86 m² Wohnung Nr. 2: 3-Zimmer - ca. 77,56 m²Wohnung Nr. 3: 3½-Zimmer - ca. 115,52 m²Wohnung Nr. 4: 3-Zimmer - ca. 77,01 m²Wohnung Nr. 5: 3-Zimmer - ca. 85,10 m²Wohnung Nr. 6: 3½-Zimmer - ca. 115,52 m²Wohnung Nr. 7: 3-Zimmer - ca. 70,22 m²Wohnung Nr. 8: 2-Zimmer - ca. 67,39 m²Wohnung Nr. 9: 3½-Zimmer - ca. 112,47 m²Die genaue Raumaufteilung entnehmen Sie bitte beigefügten Grundrissplänen.Gerne lassen wir Ihnen bei näherem Interesse detaillierte Unterlagen, Baugenehmigung etc. zukommen.Die rechtskräftige Baugenehmigung ist im Kaufpreis enthalten.
So funktioniert es
- Alle neuen Anzeigen matchen wir kostenlos mit Deinen Suchparametern.
- Passende Angebote senden wir Dir in einer E-Mail pro Tag.
- Du kannst auch verschiedene Suchen anlegen und Dich jederzeit abmelden. Mehr dazu
Wir haben soeben eine E-Mail mit Deinem Suchauftrag an Dich geschickt. – Klicke in dieser Mail auf den Bestätigungslink und schon geht's los. Prüfe ggf. auch Deinen Spamordner.
Es gab ein Problem beim Absenden Deiner E-Mail-Adresse. Bitte versuche es erneut.
WARNUNG: Bitte bestätige Deine E-Mail-Adresse, um regelmäßige Updates zu erhalten.