Objektdaten
Objektbeschreibung
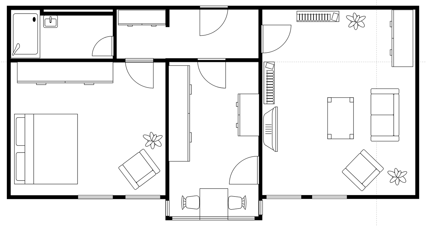
Vermietet wird eine hochwertige 2,5-Zimmerwohnung im 1. Obergeschoss eines denkmalgeschützten Mehrfamilienhauses in der Dresdner Neustadt. Vom hellen Wohnzimmer aus, in welchem die offene Küche integriert ist, gelangen Sie auf die herrliche große Terrasse. Diese lädt zum Entspannen oder zum gemütlichen Beisammensein mit Freunden oder der Familie ein. Zusätzlich gibt es einen Balkon, welcher sich am praktisch geschnittenen Schlafzimmer befindet. Der Zugang zur Ankleide erfolgt über den Flur. Das exklusive Bad ist mit einer Wanne ausgestattet. Den Anschluss für Ihre Waschmaschine finden Sie in der Küche. In allen Wohnräumen und im Flur liegt Parkettboden. Küche und Bad sind modern gefliest.Ähnliche Angebote
So funktioniert es
- Alle neuen Anzeigen matchen wir kostenlos mit Deinen Suchparametern.
- Passende Angebote senden wir Dir in einer E-Mail pro Tag.
- Du kannst auch verschiedene Suchen anlegen und Dich jederzeit abmelden. Mehr dazu





