Objektdaten
Objektbeschreibung
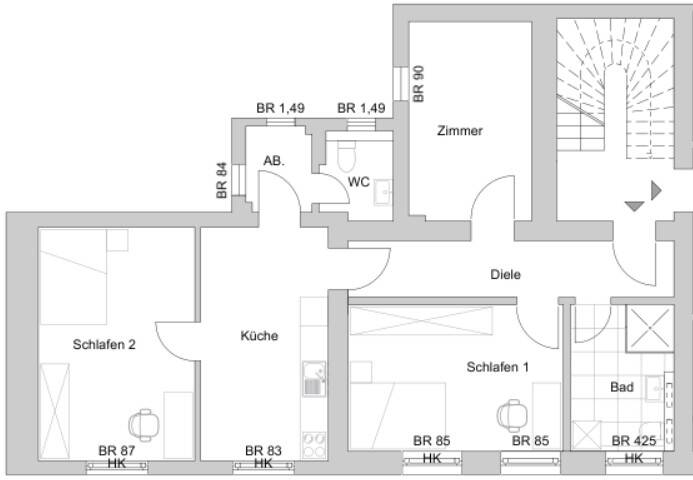
Die kompakte Wohnung liegt im neuen Wohnquartier „Campus Wohnen“ zwischen Süsterfeldstraße und dem geplanten Campusband. Im Quartier befinden sich neben hochwertigen Eigentumswohnungen und Einfamilienhäusern auch eine Kita, 2 Parkflächen mit Spielplätzen und mehrere Gebäude mit geförderten Mietwohnungen.Alle Gebäude sind mit Tiefgaragen ausgestattet, so dass die Straßen verkehrsberuhigt sind.Die perfekt zugeschnittenen Wohnungen in den viergeschossigen Gebäuden sind wie gemacht für ein unabhängiges Leben. Dank der intelligenten Aufteilung und der flexibel gestaltbaren Grundrisse lässt sich hier so gut wie jeder Lebensentwurf realisieren.Ähnliche Angebote
So funktioniert es
- Alle neuen Anzeigen matchen wir kostenlos mit Deinen Suchparametern.
- Passende Angebote senden wir Dir in einer E-Mail pro Tag.
- Du kannst auch verschiedene Suchen anlegen und Dich jederzeit abmelden. Mehr dazu





