Warmmiete 2.979 €
Zimmer 5
Größe 200 m²
24226 Heikendorf
Objektdaten
Veröffentlicht am: 10. Januar 2026
Kaltmiete 2.429 €
Energieausweis: Liegt bei der Besichtigung vor
Danke! Bitte bestätige Deine E-Mail-Adresse – wir haben Dir soeben eine Mail geschickt.
Es gab ein Problem beim Absenden. Bitte versuche es erneut.
Bitte bestätige Deine E-Mail-Adresse, um Updates zu erhalten.
Objektbeschreibung
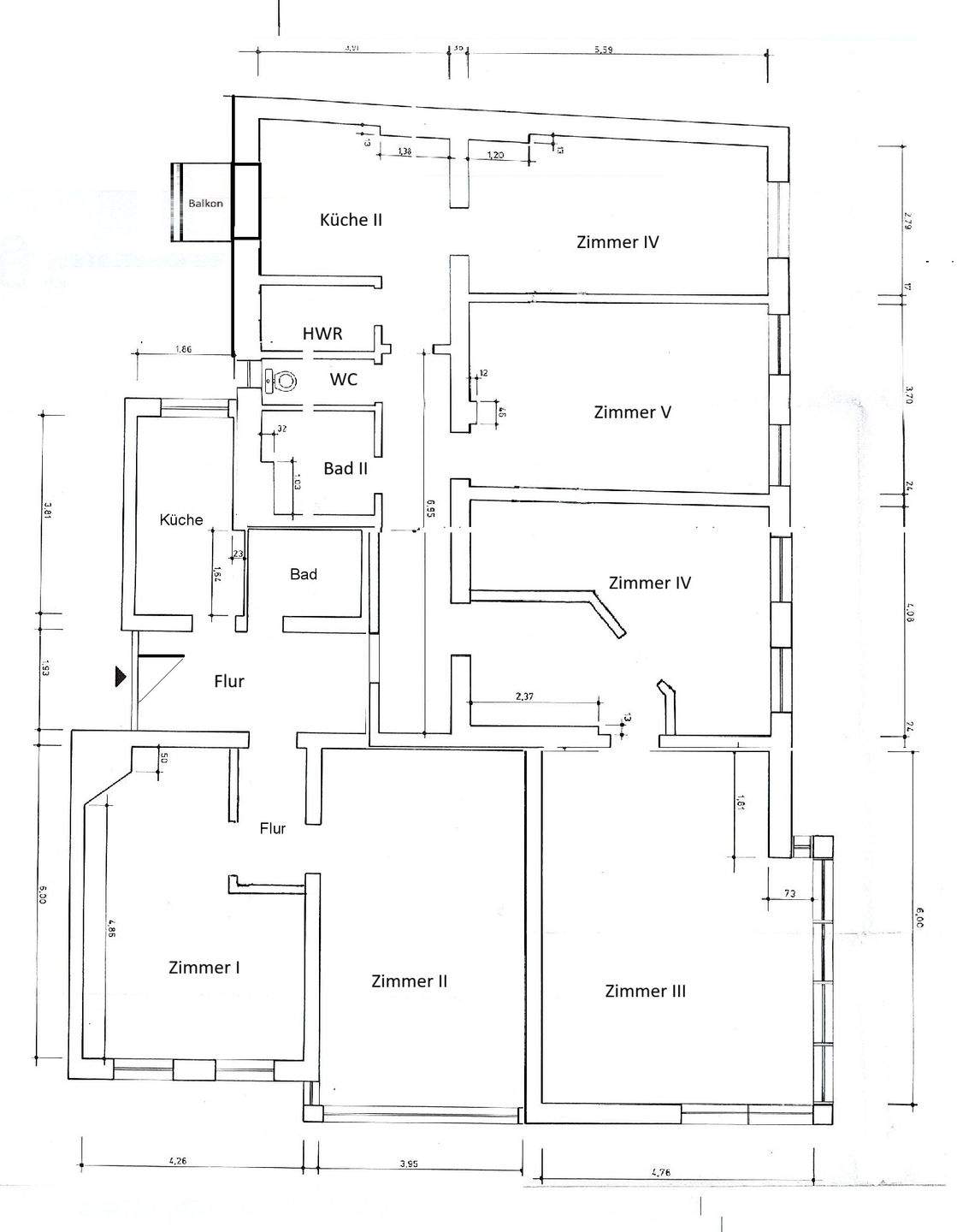
Komfortables, luxuriöses Wohnen trifft auf Landhausstil. Wohnen Sie dort wo andere Urlaub machen im schönen Ostseebad Heikendorf.Diese einmalige Maisonette-Wohnung steht Ihnen zur Verfügung. Der Eingang befindet sich im Erdgeschoss und die innenliegende Treppe bringt Sie direkt in das Dachgeschoss.Sie werden von einem freundlichen Flur empfangen. Der hochwertige und offene Essbereich mit moderner Küche lädt zum Kochen und Verweilen ein. Hier bleiben keine Wünsche offen. Mit über 37 m² können Sie sich kreativ ausleben. Richten Sie sich Ihren gemütlichen Essbereich ein und empfangen Sie Ihre Gäste zu entspannten Kochabenden.Das Highlight der Wohnung ist der maximal große und moderne Wohnbereich, hier haben Sie alle Möglichkeiten, ob kleine Hobbyecke, große Wohnlandschaft oder Platz für Ihren Lieblingssessel, hier ist alles möglich.Ein Badezimmer mit Dusche, ein Hauswirtschaftsraum sowie ein Abstellraum runden das Erdgeschoss ab.Das Schlafzimmer, die beiden weiteren Zimmer sowie das hochwertig ausgestattete Badezimmer mit Dusche und Badewanne sind im Dachgeschoss zu finden. Besonderheit dieser Etage ist die luxuriöse Sauna. Hier beginnt die Entspannung!Entscheiden Sie selber wie jedes Zimmer genutzt wird. Durch den großzügigen Schnitt ist hier an alles gedacht. Platz für die große Familie oder vereinen Sie hier Ihr Wohnen und Ihre Arbeit. Der hochwertige Fußbodenbelag und die großen Fenster runden die angenehme Wohnatmosphäre ab. Für ein gesundes Raumklima sorgt die Fußbodenheizung. Ein Außenstellplatz (Freiplatz) befindet sich direkt vor dem Haus. Gegen Aufpreis kann die Wohnung auch möbliert gemietet werden.Eine kleine Terrasse am Haus rundet diese luxuriöse Wohnung ab. Um die Ecke steht ein kleiner Garten (Gemeinschaftsgarten) zur Verfügung. Der Weg zum Strand ist von hier nicht weit.Aufgrund der Besonderheit dieser Immobilie freuen wir uns auf Ihre Anfrage und stehen für Ihren persönlichen Besichtigungstermin zur Verfügung
So funktioniert es
- Alle neuen Anzeigen matchen wir kostenlos mit Deinen Suchparametern.
- Passende Angebote senden wir Dir in einer E-Mail pro Tag.
- Du kannst auch verschiedene Suchen anlegen und Dich jederzeit abmelden. Mehr dazu
Wir haben soeben eine E-Mail mit Deinem Suchauftrag an Dich geschickt. – Klicke in dieser Mail auf den Bestätigungslink und schon geht's los. Prüfe ggf. auch Deinen Spamordner.
Es gab ein Problem beim Absenden Deiner E-Mail-Adresse. Bitte versuche es erneut.
WARNUNG: Bitte bestätige Deine E-Mail-Adresse, um regelmäßige Updates zu erhalten.