In der attraktiven Zentrum von Griesheim präsentiert sich eine stilvolle 62qm-Wohnung im Erdgeschoss eines historischen Wohnhauses. Perfekt für Senioren und Einzelpersonen mit hervorragender Anbindung an Einkaufsmöglichkeiten und ÖPNV.
Objektdaten
Objektbeschreibung
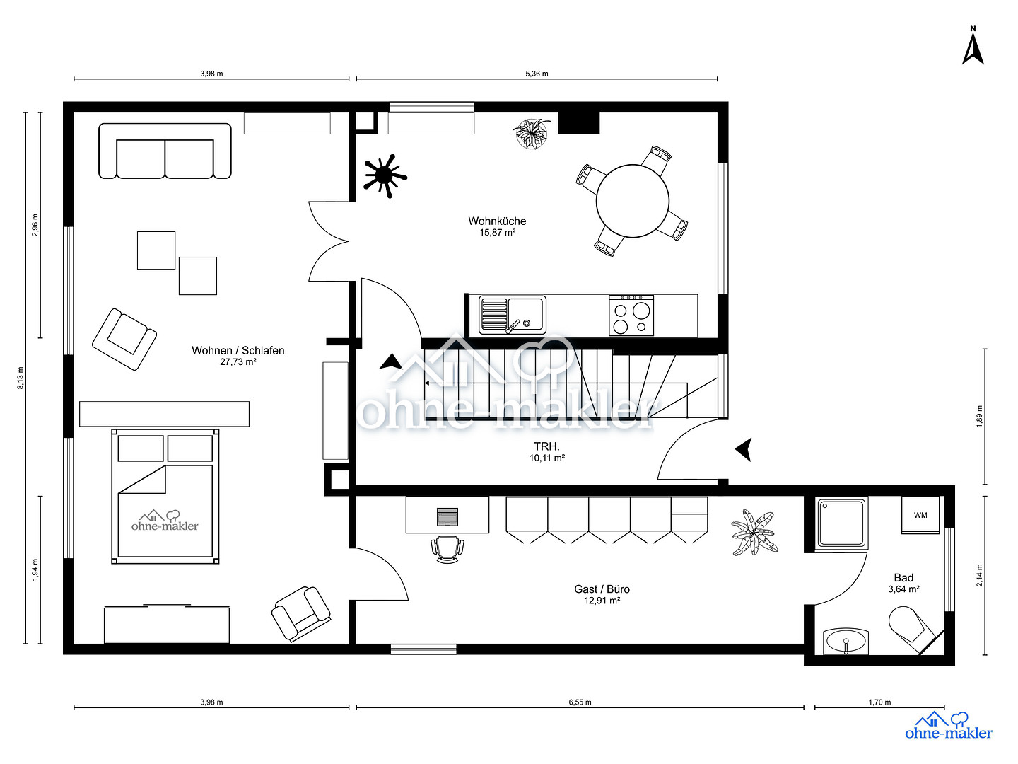
In einer attraktiven, sehr zentralen Lage von Griesheim präsentiert sich Ihnen auf 62 m2 diese Wohnung im Erdgeschoss eines historischen Wohnhauses mit nur 5 Parteien. Ideal für Einzelpersonen die eine schnelle ÖPNV/ Autobahn Anbindung zum Arbeitsplatz wünschen oder auch Senioren welche die zentrale Lage mit Ihren Einkaufsmöglichkeiten wertschätzen. Ein zum Innenhof ausgerichteter Eingangsbereich mit Wohnküche, ein großer heller Raum nach Westen mit angrenzendem Zimmer zum Tageslichtbad zeichnen diese individuelle Singlewohnung aus. Die Wohnküche mit Einbauzeile, hellen Bodenfliesen und Blick in den naturnahen, ruhigen Innenhof, sorgt für eine gemütliche Atmosphäre und fördert das Wohlbefinden. Ein anschließender ca. 30 m² variabel nutzbare Raum, überzeugt durch zwei Fensterflächen, Parkettboden, Wandnischen, einer Doppeltür mit Glaselementen und Zierprofilen. Ein besonderes Vintage Stilelement - ein Halbbogen von 1960! Ein individuelles Wohnambiente - nutzbar als Wohn/ Schlafbereich mit Doppelbett oder Wohn-/Arbeitsraum - jeweils nach der persönlichen Wohnsituation. Das angrenzende, Zimmer mit ca. 13 m² zum Tageslichtbad kann z.B. als Single-Schlafzimmer, Ankleide oder Büro mit Schlafcouch für Gäste genutzt werden. In den Bildern zeigen wir Ihnen die Nutzung als Single-Schlafzimmer mit Schreibtisch. Im zwei- und dreidimensionalen Grundriss ist es alternativ als Ankleidezimmer/ Büro dargestellt. Das Gebäude wurde 1912 in einem Ensemble mit vier weiteren Gebäuden errichtet. Es befindet sich im Geltungsbereich der Erhaltungssatzung der Stadt Griesheim. Diese Satzung dient dem Schutz und Erhalt von historischen Gebäuden und ihren charakteristischen Merkmalen. Aufteilung und Hausgemeinschaft Das Anwesen mit 5 Wohneinheiten wurde kürzlich nach WEG geteilt. Es besteht aus einem Vorderhaus inkl. Seitenbau und einem rückwärtigen Quergebäude. In 4 Wohneinheiten wohnen ruhige Einzelpersonen. Identitätsstärkende Merkmale wie z.B. eine persönliche Atmosphäre, der naturnahe Innenhof und respektvolle Hausgemeinschaft und Nachbarn prägen das Miteinander und tragen zu einem angenehmen Wohngefühl bei. Keller, Duschbad, Einbauküche, Parkett, Fliesen Bemerkungen: Erhöhtes Erdgeschoss, 62 m² Wohnfläche in historischem Gebäude Individuelle Wohnung mit Parkettboden, Wandnischen und Halbbogen Wohnküche mit Einbauzeile, Bodenfliesen und Blick in ruhigen Innenhof Helles Tageslichtbad, geflieste Wände und Boden, Dusche, WC, Waschbecken, Waschmaschinenanschluss, vertikaler Spiegelschrank Zentralheizung - Heizungsanlage erneuert in 2024 – GEG- konform & effizient, Warmwasser in Küche und Bad über Warmwasserboiler Energieklasse F inkl. Warmwasser Sitzgelegenheit im Innenhof nach Absprache Abstellraum im Keller, ca. 2,7 m²Energieträger: Öl
Voraussetzung für eine telefonisch vereinbarte Besichtigung ist ein von Ihnen vollständig ausgefüllte Kontaktanfrage mit Namen, Wohnadresse und Telefonnummer. Danke.
Kontakt
Hausverwaltung E.Martin
Dipl Ing Architektur
Tel 01525 2333285
Mo - Sa 10 bis 19 Uhr
Makleranfragen nicht erwünscht. Nach § 7 UWG sind unaufgeforderte Kontaktaufnahmen durch Makler ohne ausdrückliche Einwilligung des Empfängers verboten!
ohne-makler (OM) ist weder Anbieter noch Vermittler der Immobilie. OM betreibt eine Plattform für Immobilieneigentümer, die unter anderem die gleichzeitige Veröffentlichung einzelner Inserate auf mehreren Immobilienportalen ermöglicht. Die Inhalte dieser Inserate werden ausschließlich von Dritten verantwortet. Für die Richtigkeit, Vollständigkeit oder Rechtmäßigkeit der Angaben übernimmt OM keine Haftung. Hinweise auf mögliche Rechtsverstöße können jederzeit gemeldet werden und werden nach Prüfung umgehend bearbeitet.
So funktioniert es
- Alle neuen Anzeigen matchen wir kostenlos mit Deinen Suchparametern.
- Passende Angebote senden wir Dir in einer E-Mail pro Tag.
- Du kannst auch verschiedene Suchen anlegen und Dich jederzeit abmelden. Mehr dazu


