Objektdaten
Objektbeschreibung
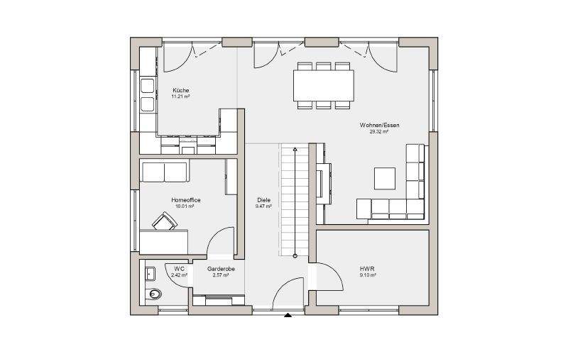
Dieses Haus wird nach Ihren individuellen Wünschen geplant und ausgestattet!Der lichtdurchflutete Wohntraum 'Signus' lässt keine Wünsche offen. Auf zwei Vollgeschossen findet die ganze Familie Platz, um sich zu entspannen und frei zu entfalten. Die bodentiefen Fensterelemente machen das Haus zu einem Wohnerlebnis und zeigen die Großzügigkeit dieser zeitlosen Stadtvilla.Gleich im Eingangsbereich zeigt die Stadtvilla Signus durch ihre Offenheit was sie zu bieten hat. Eine große Garderobe verstaut die Jacken und Mäntel der Bewohner sowie Besucher. Über einen langen Flur, vorbei an der geradläufigen Treppe, gelangen Sie in den Wohn-/Essbereich des Hauses, an den auch die offene Küche Anschluss findet. Von hier bieten die bodentiefen Fenster einen herrlichen Blick in den Garten. Des Weiteren befindet sich im Erdgeschoss ein Home-Office, das auch als Gäste-Zimmer genutzt werden kann, als auch ein Hauswirtschaftsraum und ein Gäste-WC. Im Obergeschoss steht das Wohlbefinden jedes einzelnen Familienmitglieds im Vordergrund. Die Räume der Kinder sind großzügig gestaltet und sind ein angenehmer Rückzugsort. Das Elternschlafzimmer verfügt über ein angrenzendes Ankleidezimmer. Im Wellness-Bad kann die ganze Familie nach Herzenslust die Seele baumeln lassen.Ähnliche Angebote
So funktioniert es
- Alle neuen Anzeigen matchen wir kostenlos mit Deinen Suchparametern.
- Passende Angebote senden wir Dir in einer E-Mail pro Tag.
- Du kannst auch verschiedene Suchen anlegen und Dich jederzeit abmelden. Mehr dazu



