Kaufpreis 268.000 €
Zimmer 6
Größe 156 m²
84453 Mühldorf a. Inn
Objektdaten
Veröffentlicht am: 13. Januar 2026
Energieausweis: Liegt bei der Besichtigung vor
Danke! Bitte bestätige Deine E-Mail-Adresse – wir haben Dir soeben eine Mail geschickt.
Es gab ein Problem beim Absenden. Bitte versuche es erneut.
Bitte bestätige Deine E-Mail-Adresse, um Updates zu erhalten.
Objektbeschreibung
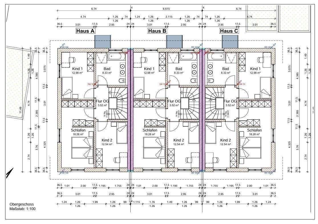
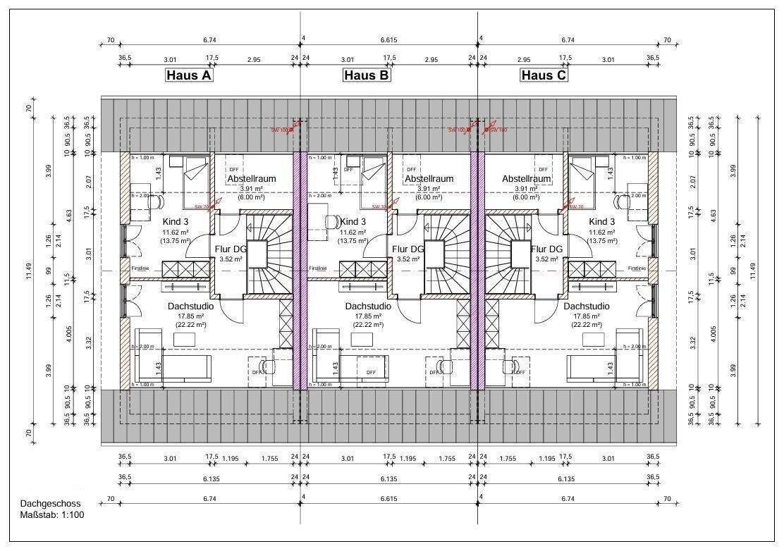
Zum Verkauf steht ein Neubau Reiheneckhaus inkl. Photovoltaikanlage in gesunder Ziegelbauweise in ruhiger Siedlungslage von Mühldorf Nord.Das Haus wird auf ein Erbpachtgrundstück erbaut . Das Grundstück hat eine Gesamtfläche von ca. 300qm. Der monatliche Erbpachtzins liegt bei ca. 335€.Das Haus hat eine Wohnfläche von ca. 156qm und weist dank moderner Luftwärmepumpe einen Energiewert von nur 45 KWh/a auf. Es hat somit die Energieklasse A. Das Raumklima ist dank großer Glaselemente und durch die exzellente Wärmedämmung sehr angenehm.Die Raumaufteilung ist wie folgt:Erdgeschoss: Geräumiger Eingangsflur, Gäste WC, Technikraum/Waschraum, großer Wohn- und Essbereich mit offener Küche, Zugang zur Süd Terrasse.Obergeschoss: geräumige Diele, 1 großes Schlafzimmer mit begehbaren Kleiderschrank, 2 praktische Kinderzimmer, 1 großes Tageslichtbad mit Badewanne und Dusche.Dachgeschoss:geräumige Diele, 1 großes Schlafzimmer/Arbeitszimmer, 1 Kinderzimmer, 1 AbstellraumAussen:Große Terrasse in Süd Ausrichtung und Zugang zur Garage. Schön angelegter, ebener Gartenbereich rundum das Haus, Einzelgarage seitlich des Grundstücks.Das Anwesen ist an den üblichen, öffentlichen Ver- und Entsorgungseinrichtungen angeschlossen. Beheizt wird das Haus per Luftwärmepumpe mit Energieklasse A und Fußbodenheizung in allen Wohnräumen.
So funktioniert es
- Alle neuen Anzeigen matchen wir kostenlos mit Deinen Suchparametern.
- Passende Angebote senden wir Dir in einer E-Mail pro Tag.
- Du kannst auch verschiedene Suchen anlegen und Dich jederzeit abmelden. Mehr dazu
Wir haben soeben eine E-Mail mit Deinem Suchauftrag an Dich geschickt. – Klicke in dieser Mail auf den Bestätigungslink und schon geht's los. Prüfe ggf. auch Deinen Spamordner.
Es gab ein Problem beim Absenden Deiner E-Mail-Adresse. Bitte versuche es erneut.
WARNUNG: Bitte bestätige Deine E-Mail-Adresse, um regelmäßige Updates zu erhalten.