Objektdaten
Objektbeschreibung
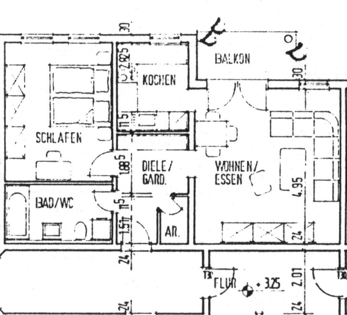
Das großzügige Wohnzimmer mit Zugang zum westlich ausgerichteten Balkon und angrenzender Küche ist lichtdurchflutet und überzeugt durch seine helle, freundliche Atmosphäre. Die Küche verfügt über ein Fenster und fügt sich harmonisch in den individuell gestalteten Grundriss ein.Das Badezimmer ist gefliest und mit einer Badewanne ausgestattet.Zusätzlichen Stauraum bieten eine Abstellkammer innerhalb der Wohnung sowie ein weiterer, der Wohnung zugeordneter Abstellraum im Dachgeschoss. Dort steht außerdem ein gemeinschaftlicher Trockenraum zur Verfügung.Alle Etagen sowie die Tiefgarage sind bequem mit dem Aufzug erreichbar.Das Objekt befindet sich in einer ruhigen Nebenstraße und verfügt über eine sehr gute Anbindung an den öffentlichen Nahverkehr. Einkaufsmöglichkeiten für den täglichen Bedarf sind fußläufig erreichbar.Sowohl die Autobahn als auch das Stadtzentrum sind mit dem Pkw schnell zu erreichen.Ein Tiefgaragenstellplatz oder alternativ ein Außenstellplatz im Innenhof kann zusätzlich angemietet werden.Ähnliche Angebote
So funktioniert es
- Alle neuen Anzeigen matchen wir kostenlos mit Deinen Suchparametern.
- Passende Angebote senden wir Dir in einer E-Mail pro Tag.
- Du kannst auch verschiedene Suchen anlegen und Dich jederzeit abmelden. Mehr dazu





