Ihr Neubau in Bestlage

Kaufpreis 2.431.163 €
Zimmer 6
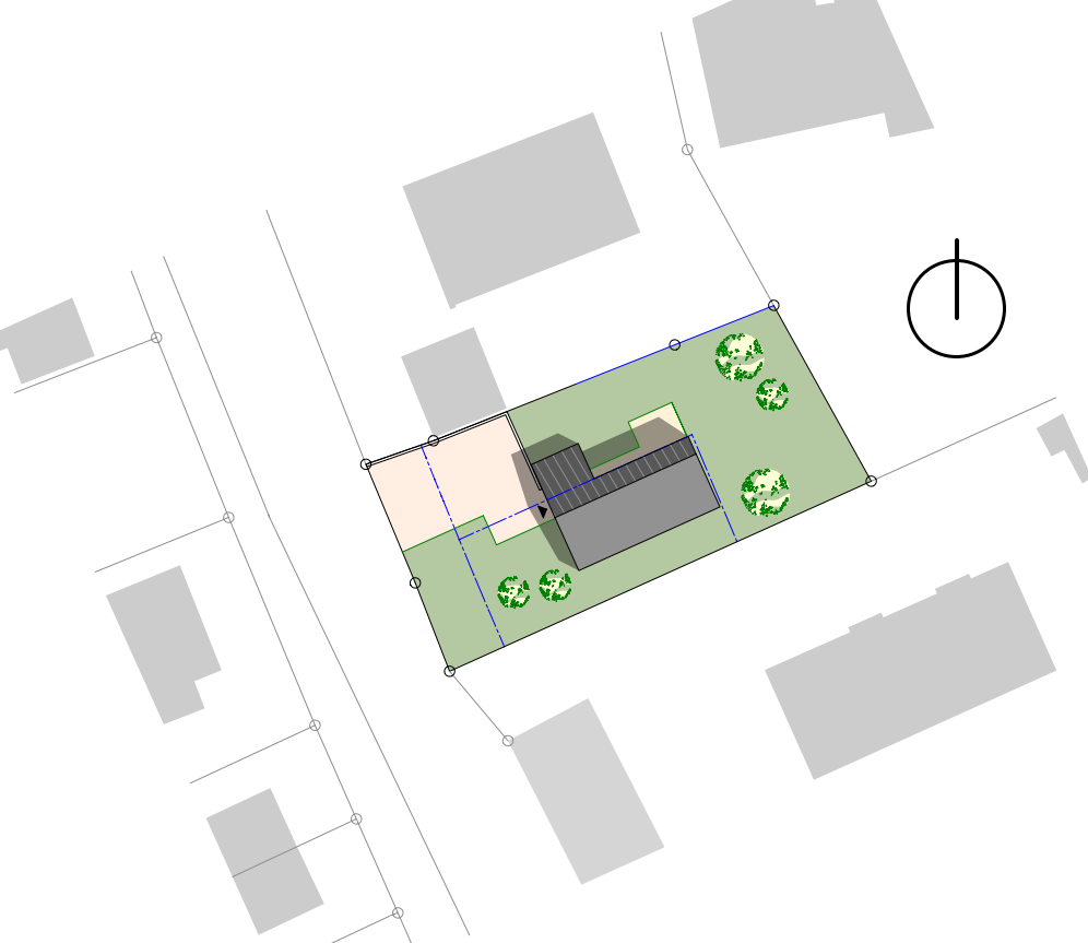
Größe 258 m²
70192 Stuttgart

Objektdaten

Veröffentlicht am: 15. Januar 2026
Energieausweis: Liegt bei der Besichtigung vor
Neu

Über ähnliche Angebote direkt informiert werden

  • Objektbeschreibung

    Bei diesem Angebot handelt es sich um einen Komplettpreis (zuzgl. Kauf- und Baunebenkosten sowie Maklergebühren), welcher das Grundstück inkl. Haus beinhaltet. Letzteres kann entsprechend Ihren Wünschen nach umgeplant, verkleinert oder vergrößert werden. Zu beachten ist hier das geltende Baurecht für dieses Grundstück.

    Ähnliche Angebote

    So funktioniert es

    • Alle neuen Anzeigen matchen wir kostenlos mit Deinen Suchparametern.
    • Passende Angebote senden wir Dir in einer E-Mail pro Tag.
    • Du kannst auch verschiedene Suchen anlegen und Dich jederzeit abmelden. Mehr dazu
    Nach oben scrollen