Objektdaten
Objektbeschreibung
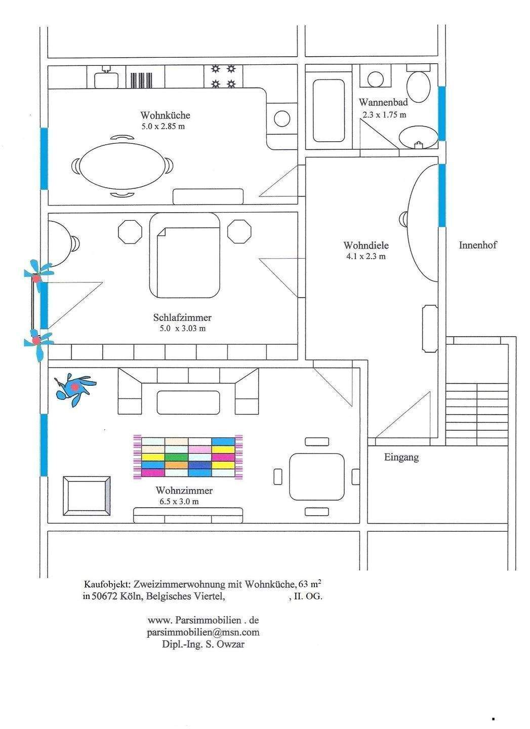
Gepflegtes Wohnen in einem Mehrfamilienhaus mit 12 Wohneinheiten in der Namibiastr. 28 in Köln-Nippes, eine ruhige Seitenstraße im angesagten Veedel Nippes. Das Mehrfamilienhaus bietet 4 Ein-, 7 Zweizimmerwohnungen und eine 3-Zimmer Wohnung mit Wohnungsgrößen zwischen rund 29 qm und 81 qm. Die Grundrisse präsentieren sich in unterschiedlichen Raumaufteilungen. Die Wohnungen im ersten und zweiten Obergeschoss verfügen über einen Balkon, die Dachgeschosswohnung über eine Terrasse. Wir bieten hier eine modernisierte 2 -Zimmer Wohnung mit einem klassischen Grundriss an - mit 65,79 qm im 2. Obergeschoss. Beim Betreten der Wohnung erreichen Sie die Diele, an welche sich alle Räume anschließen. Auf der rechten Seite des Flurs liegt die Küche. Ebenfalls an den Flur angeschlossen befindet sich das großzügige Schlafzimmer. Gegenüber erreichen Sie das Wohn-, Esszimmer mit einem Balkon zur Südseite. Das moderne Duschbad mit großflächigen Fliesen und namhaften Armaturen bietet Komfort. Die Wohnung (WE 10) wird komplett renoviert mit neuem Duschbad mit modernen großflächigen Fliesen und geöltem Eichenparkett im Wohn,- und Schlafraum sowie der Diele. Das gesamte Haus profitiert von der massiven Bauweise, die Fenster sind isolierverglast. Im Kellergeschoß befindet sich ein Fahrrad- und ein Wasch-/ Trockenraum. Kellerräume sind vorhanden. Diese Stadtwohnung besticht durch die zentrale Lage und eine gelungene Raumaufteilung - geeignet für ein Paar oder Singles.Ähnliche Angebote
So funktioniert es
- Alle neuen Anzeigen matchen wir kostenlos mit Deinen Suchparametern.
- Passende Angebote senden wir Dir in einer E-Mail pro Tag.
- Du kannst auch verschiedene Suchen anlegen und Dich jederzeit abmelden. Mehr dazu




