Warmmiete 1.581 €
Zimmer 3
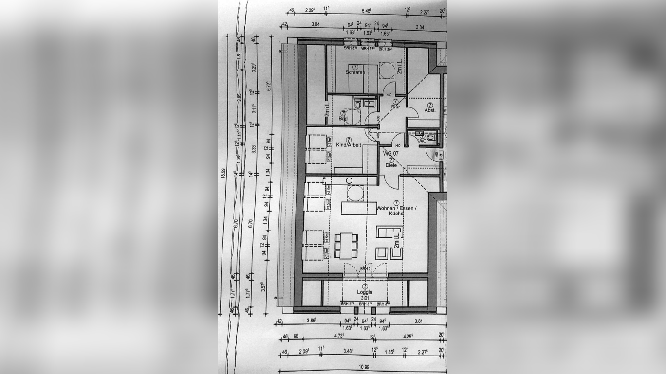
Größe 108 m²
46414 Rhede
Objektdaten
Veröffentlicht am: 16. Januar 2026
Kaltmiete 1.358 €
Energieausweis: Liegt bei der Besichtigung vor
Danke! Bitte bestätige Deine E-Mail-Adresse – wir haben Dir soeben eine Mail geschickt.
Es gab ein Problem beim Absenden. Bitte versuche es erneut.
Bitte bestätige Deine E-Mail-Adresse, um Updates zu erhalten.
Objektbeschreibung
In ruhiger Lage von Rhede, auf dem ehemaligen DJK-Platz, entsteht ein modernes Mehrfamilienhaus, das speziell auf die Bedürfnisse älterer Menschen zugeschnitten ist. Hochwertige Architektur, energieeffiziente Bauweise nach KfW-40-Standard und ein durchdachtes Wohnkonzept schaffen ein komfortables, sicheres und zukunftssicheres Zuhause.
Besonders attraktiv: Das Haus liegt direkt an einem Wald und bietet einen direkten Anschluss an den Mehrgenerationenpark – ideal für Spaziergänge, Bewegung an der frischen Luft oder einfach entspannte Stunden in naturnaher Umgebung.
Ab Februar 2026 steht eine exklusive Dachgeschosswohnung zur Vermietung bereit – perfekt für alle, die selbstständig wohnen und zugleich die Vorteile eines vollständig barrierefreien Zuhauses genießen möchten.
Lage
Hildegardstraße 5
46414 Rhede
Die Wohnung befindet sich in einer ruhigen Wohnlage auf dem ehemaligen DJK-Platz, direkt am angrenzenden Wald und mit Zugang zum Mehrgenerationenpark. Kurze Wege zu Einkaufsmöglichkeiten, Ärzten und allen Einrichtungen des täglichen Bedarfs runden die Lage ab.
Zielgruppe
Vermietung an Personen ab 50 Jahren.
Ausstattung & Highlights
- Erstbezug in einem modernen Neubau
- Energieeffizient nach KfW-40-Standard
- Aufzug vom Keller bis ins Dachgeschoss – komfortabler Zugang zu allen Etagen
- Glasfaseranschluss für schnelles und zukunftssicheres Internet
- Heiz- und Wasserkosten werden separat und verbrauchsabhängig direkt mit dem Versorger abgerechnet
- 1–2 Stellplätze verfügbar (je 30 € monatlich)
- Wallbox für E-Fahrzeuge vorhanden
- Helle, sonnige Loggia zur Südseite
- Großer eigener Kellerraum (ca. 30qm)
- Gemeinschaftswaschkeller für Waschmaschine und Trockner, bequem über den Aufzug erreichbar
- Fahrradraum im Erdgeschoss mit separatem Eingang, inklusive Steckdose zum Laden von E-Bikes
- Großzügiger Abstellraum innerhalb der Wohnung
- Gäste-WC für zusätzlichen Komfort
-Elektrische Jalousien, steuerbar per App und/oder Zentralschalter
- Haus und Wohnung vollständig barrierefrei
- Der finale Innenanstrich kann vom Mieter nach eigenen Wünschen gestaltet werden – so schaffen Sie ein Zuhause mit persönlicher Note
So funktioniert es
- Alle neuen Anzeigen matchen wir kostenlos mit Deinen Suchparametern.
- Passende Angebote senden wir Dir in einer E-Mail pro Tag.
- Du kannst auch verschiedene Suchen anlegen und Dich jederzeit abmelden. Mehr dazu
Wir haben soeben eine E-Mail mit Deinem Suchauftrag an Dich geschickt. – Klicke in dieser Mail auf den Bestätigungslink und schon geht's los. Prüfe ggf. auch Deinen Spamordner.
Es gab ein Problem beim Absenden Deiner E-Mail-Adresse. Bitte versuche es erneut.
WARNUNG: Bitte bestätige Deine E-Mail-Adresse, um regelmäßige Updates zu erhalten.