Attraktives Zweifamilienhaus mit separaten Eingängen in zentraler Lage von Geldern

Kaufpreis 299.000 €
Zimmer 7
Größe 200 m²
47608 Geldern

Objektdaten

Veröffentlicht am: 19. Januar 2026
Frei ab: 31. März 2026
Baujahr: 1890
Energieausweis: Liegt bei der Besichtigung vor
  • Objektbeschreibung

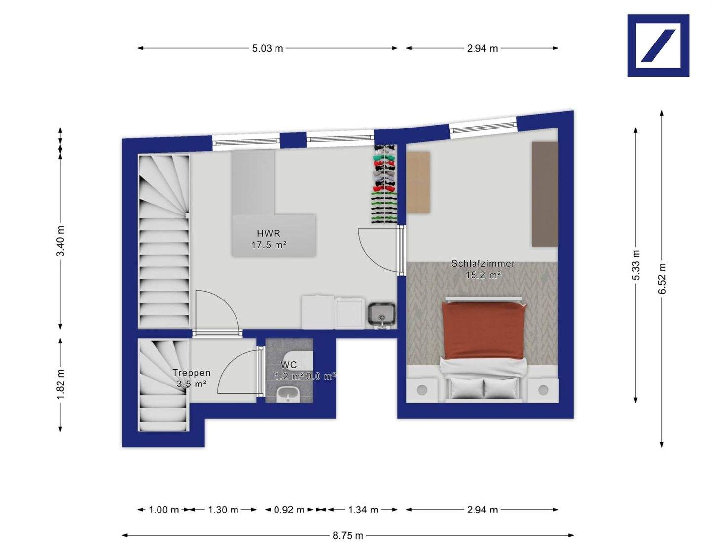
    Dieses außergewöhnliche Zweifamilienhaus in zentraler Lage von Geldern bietet ein Wohnkonzept, das sich flexibel an unterschiedliche Lebensmodelle anpasst. Ob Eigennutzung, vollständige Vermietung oder eine attraktive Kombination aus Wohnen und Kapitalanlage - hier stehen Ihnen alle Möglichkeiten offen.Das ursprünglich im Jahr 1890 errichtete Gebäude wurde 2020 umfassend kernsaniert und präsentiert sich heute in einem modernen, gepflegten Zustand. Historischer Charme trifft hier auf zeitgemäße Wohnqualität. Im Zuge der umfassenden Modernisierung wurde auch die energetische Qualität des Gebäudes deutlich verbessert. Laut Energieausweis liegt der Energieverbrauch bei 101 kWh/(m²·a) und unterstreicht den guten energetischen Zustand der Immobilie.Wohnung 1 - ca. 134,31 m² | Ideal für EigennutzerDiese Wohneinheit erstreckt sich über Erdgeschoss, Obergeschoss und Dachgeschoss und bietet viel Raum für Familien oder Paare mit Platzbedarf.Im Erdgeschoss befindet sich ein modernes Badezimmer mit Badewanne, Dusche und WC. Das großzügige Wohnzimmer mit offener Küche bildet das Herzstück der Wohnung und öffnet sich zu einer kleinen Terrasse, die zum Entspannen einlädt.Ein zusätzlicher Büroraum mit separatem Eingang eröffnet besondere Nutzungsmöglichkeiten:? Homeoffice? Gäste- oder Schlafzimmer? separat vermietbare EinheitIm 1. Obergeschoss befinden sich ein Schlafzimmer, ein Hauswirtschaftsraum sowie ein separates WC, was den Wohnkomfort zusätzlich erhöht.Das Dachgeschoss bietet einen weiteren flexibel nutzbaren Raum - ob als Schlafzimmer, Hobby- oder Arbeitszimmer.Wohnung 2 - ca. 66,44 m² | Perfekt für KapitalanlegerDie zweite Wohneinheit verfügt über einen eigenen Eingang und überzeugt durch einen sehr modernen, zeitgemäßen Grundriss.Sie bietet ein helles Wohnzimmer, eine separate Küche sowie ein Badezimmer mit Dusche und WC.Im Dachgeschoss befindet sich ein großzügiges Schlafzimmer, das durch seine Raumwirkung und Privatsphäre überzeugt.Die Wohnung ist derzeit vermietet und erzielt eine monatliche Kaltmiete von 550 €, wodurch sie eine attraktive und sofort ertragsbringende Kapitalanlage darstellt.Eine Einfahrt gehört ebenfalls zur Immobilie. Für große, moderne Fahrzeuge ist sie zwar nicht ausgelegt, bietet jedoch einen praktischen Alltagskomfort - ideal, um Einkäufe bequem und direkt ins Haus zu bringen.Für einen realistischen Eindruck der Raumaufteilung steht eine 360-Grad-Tour zur Verfügung, die es ermöglicht, die Immobilie jederzeit und ortsunabhängig virtuell zu besichtigen.
    Nach oben scrollen