WE01 I Moderne 3-Zimmer Wohnung im Schulenburger Stadtquartier

Kaufpreis 451.900 €
Zimmer 3
Größe 98 m²
30165 Hannover

Objektdaten

Veröffentlicht am: 19. Januar 2026
Baujahr: 2025
Energieausweis: Liegt bei der Besichtigung vor
Neu

Über ähnliche Angebote direkt informiert werden

  • Objektbeschreibung

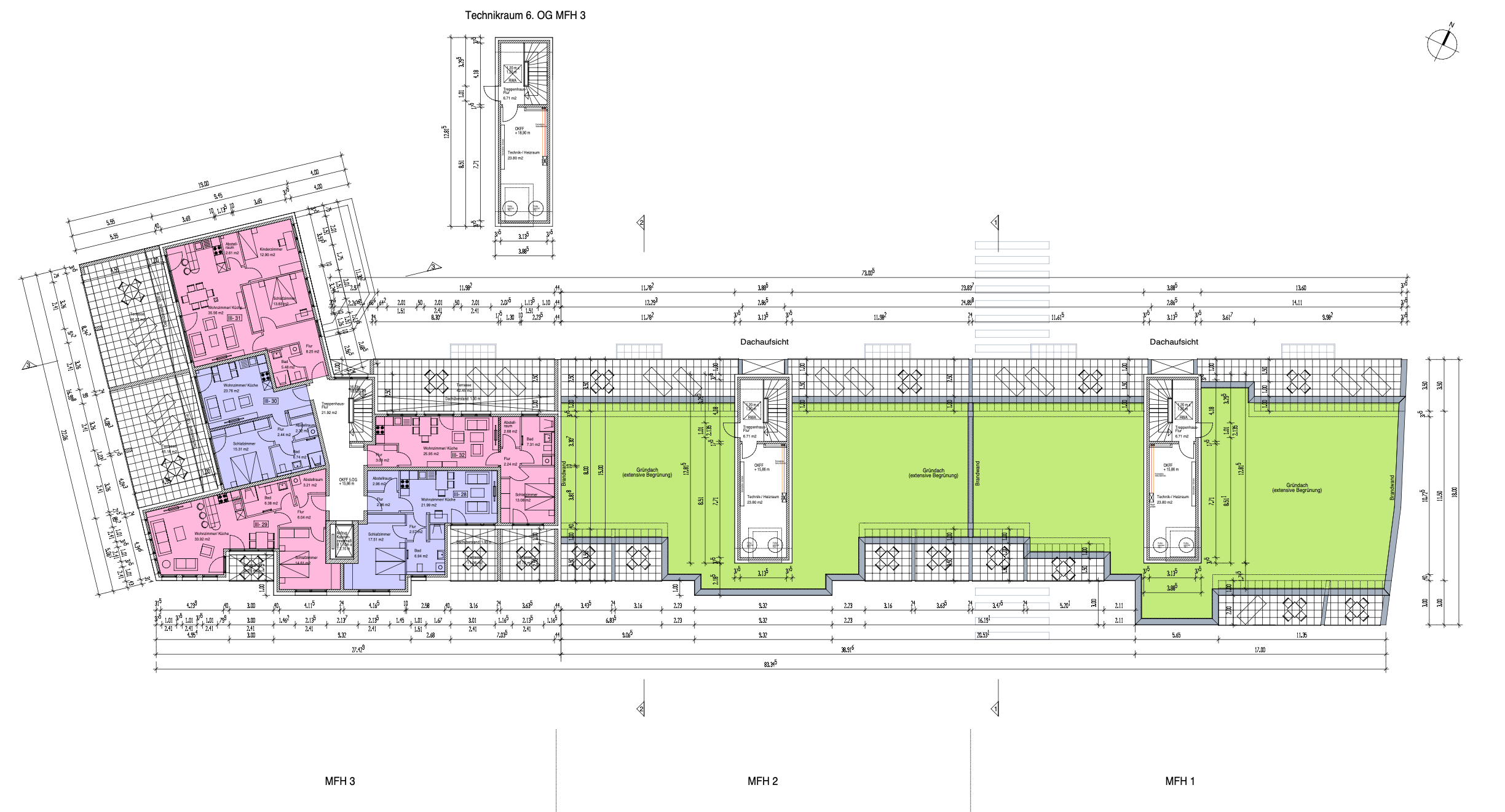
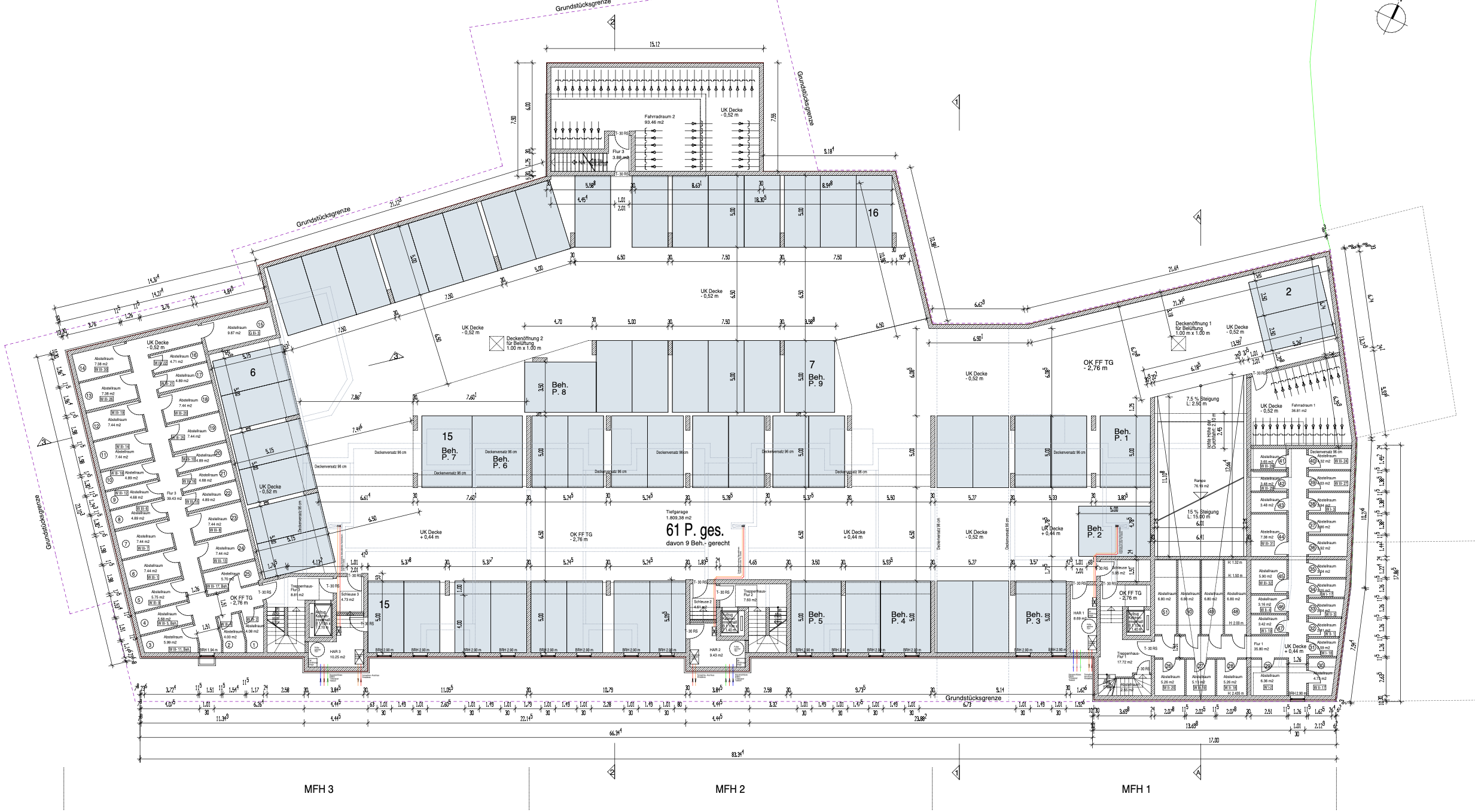
    Das Objekt fügt sich ebenso mit seinen gestalterischen Akzenten nahtlos in das Bild des Wohngebietes ein. Das Bauvorhaben wird in 5-geschossiger Bauweise mit einem modernen Flachdach in einer energieoptimierenden Bauweise errichtet.Es werden insgesamt 3 Mehrfamilienhäuser mit insgesamt 70 modernen Wohnungen in 4 verschiedenen Wohnungstypen realisiert. Die Wohnungen befinden sich im EG bis zum 5. Obergeschoss und sind bequem mit dem Aufzug zu erreichen. Die Wohnungsgrößen variieren zwischen 1-4 Zimmer und Wohnflächen von 36 qm bis hin zu 125 qm. Zudem verfügt das Objekt über eine Tiefgarage mit 61 Stellplätzen. Die Stellplätze sind nicht im Kaufpreis berücksichtigt und werden exklusiv ausgewiesen.Für mehr Informationen fordern Sie gern unser aussagekräftiges Exposé an!

    Ähnliche Angebote

    So funktioniert es

    • Alle neuen Anzeigen matchen wir kostenlos mit Deinen Suchparametern.
    • Passende Angebote senden wir Dir in einer E-Mail pro Tag.
    • Du kannst auch verschiedene Suchen anlegen und Dich jederzeit abmelden. Mehr dazu
    Nach oben scrollen