Kaufpreis 2.268.900 €
Zimmer 18
Größe 576 m²
09123 Chemnitz
Objektdaten
Veröffentlicht am: 20. Januar 2026
Baujahr: 2026
Energieausweis: Liegt bei der Besichtigung vor
Danke! Bitte bestätige Deine E-Mail-Adresse – wir haben Dir soeben eine Mail geschickt.
Es gab ein Problem beim Absenden. Bitte versuche es erneut.
Bitte bestätige Deine E-Mail-Adresse, um Updates zu erhalten.
Objektbeschreibung
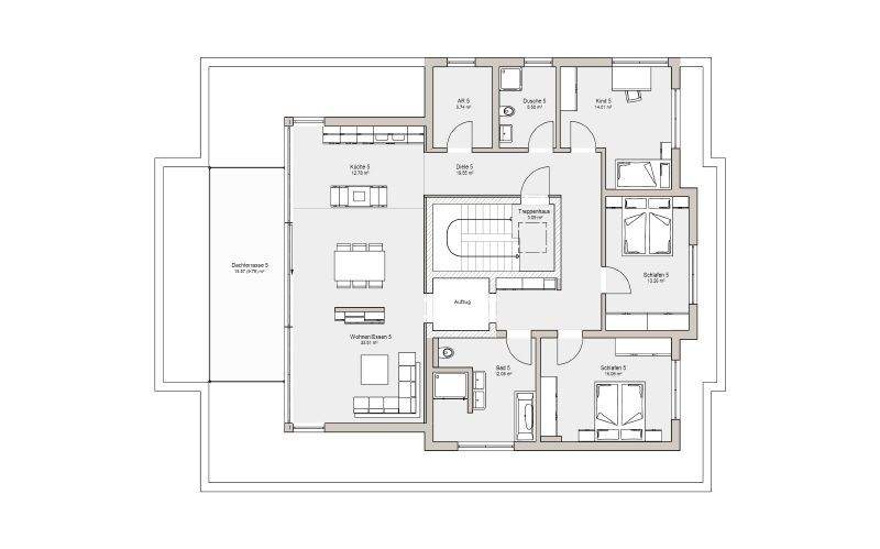
Dieses Haus wird nach Ihren individuellen Wünschen geplant und ausgestattet - gern auch größer mit mehr Wohneinheiten!Das Mehrfamilienhaus Quinta umfasst fünf Wohneinheiten. Alle Wohneinheiten sind über den gleichen Eingang erreichbar, von diesem Eingang aus erreichen auch alle Parteien den Technikraum und den Hauswirtschaftsraum für Waschmaschinen und Trockner. Im Erdgeschoss des Hauses befinden sich eine 75 Quadratmeter und eine 119 Quadratmeter große Wohnung. Jede Wohnung im Erdgeschoss besteht aus einem über 30 Quadratmeter großen Wohn-Ess-Zimmer mit offener Küche, einem Schlafzimmer, einem geräumigen Badezimmer mit Dusche und einem Abstellraum. Beide Wohnungen haben Zugang zum Garten mit einer überdachten Terrasse. Die Wohneinheit 2 verfügt zusätzlich über zwei weitere Zimmer.Im Obergeschoss befinden sich ebenfalls zwei Wohneinheiten mit 119 und 121 Quadratmetern. Diese Wohneinheiten bestehen aus einem großen Wohnbereich mit Esszimmer und offener Küche, je drei Schlafzimmern, einem Badezimmer und einem Abstellraum. Besonders schön ist der Balkon, der zu den Wohneinheiten gehört.Das Staffelgeschoss bietet eine Penthouse Wohnung mit 142 m² Wohnfläche. Hier wird Privatsphäre groß geschrieben. Die Wohnung bietet eine über 50 Quadratmeter großen, lichtdurchfluteten Wohnraum mit offener Küche. Außerdem gehören drei geräumige Schlafzimmer, zwei Badezimmer und ein Abstellraum zur Wohnung. Die Dachterrasse lädt zum Verweilen ein.
So funktioniert es
- Alle neuen Anzeigen matchen wir kostenlos mit Deinen Suchparametern.
- Passende Angebote senden wir Dir in einer E-Mail pro Tag.
- Du kannst auch verschiedene Suchen anlegen und Dich jederzeit abmelden. Mehr dazu
Wir haben soeben eine E-Mail mit Deinem Suchauftrag an Dich geschickt. – Klicke in dieser Mail auf den Bestätigungslink und schon geht's los. Prüfe ggf. auch Deinen Spamordner.
Es gab ein Problem beim Absenden Deiner E-Mail-Adresse. Bitte versuche es erneut.
WARNUNG: Bitte bestätige Deine E-Mail-Adresse, um regelmäßige Updates zu erhalten.