Objektdaten
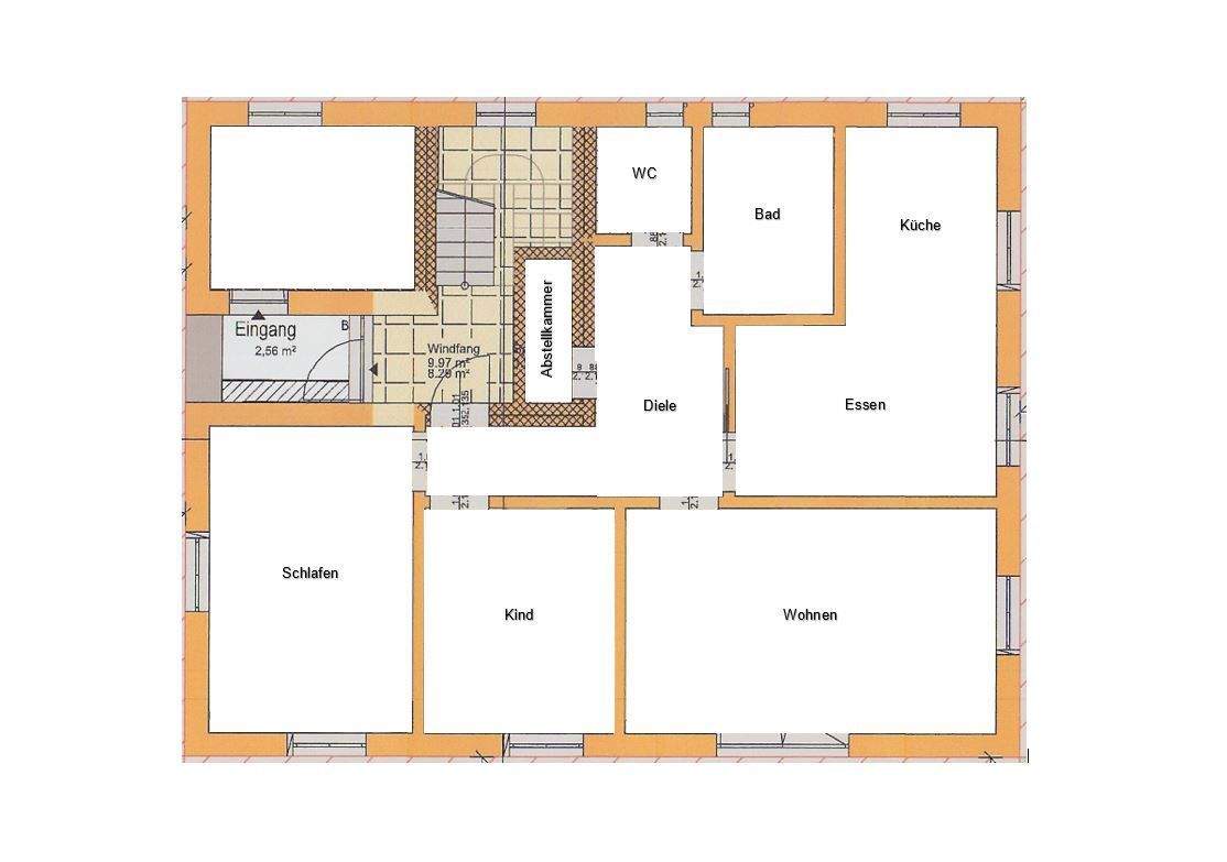
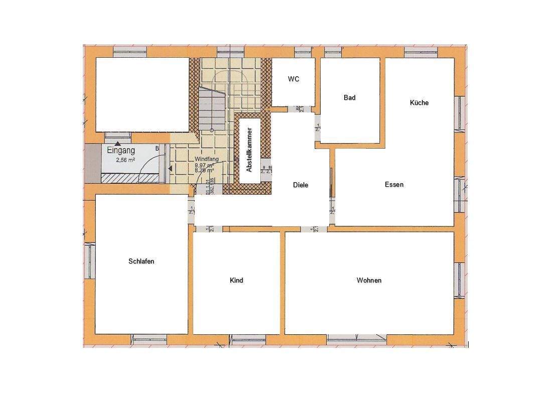
Objektbeschreibung
Die Hausreinigung für dieses Objekt muss von den Mietern durchgeführt werden. Der Winterdienst für dieses Objekt wird von einer Firma ausgeführt.Ähnliche Angebote
So funktioniert es
- Alle neuen Anzeigen matchen wir kostenlos mit Deinen Suchparametern.
- Passende Angebote senden wir Dir in einer E-Mail pro Tag.
- Du kannst auch verschiedene Suchen anlegen und Dich jederzeit abmelden. Mehr dazu





