Eine wunderschöne und großzügige 5-Zimmer-Altbauwohnung mit ca. 151,1 m² Wohnfläche in der Torstraße, Berlin. Die Wohnung verfügt über zwei Eingänge und eine vollständig modernisierte Elektrik.
Objektdaten
Objektbeschreibung
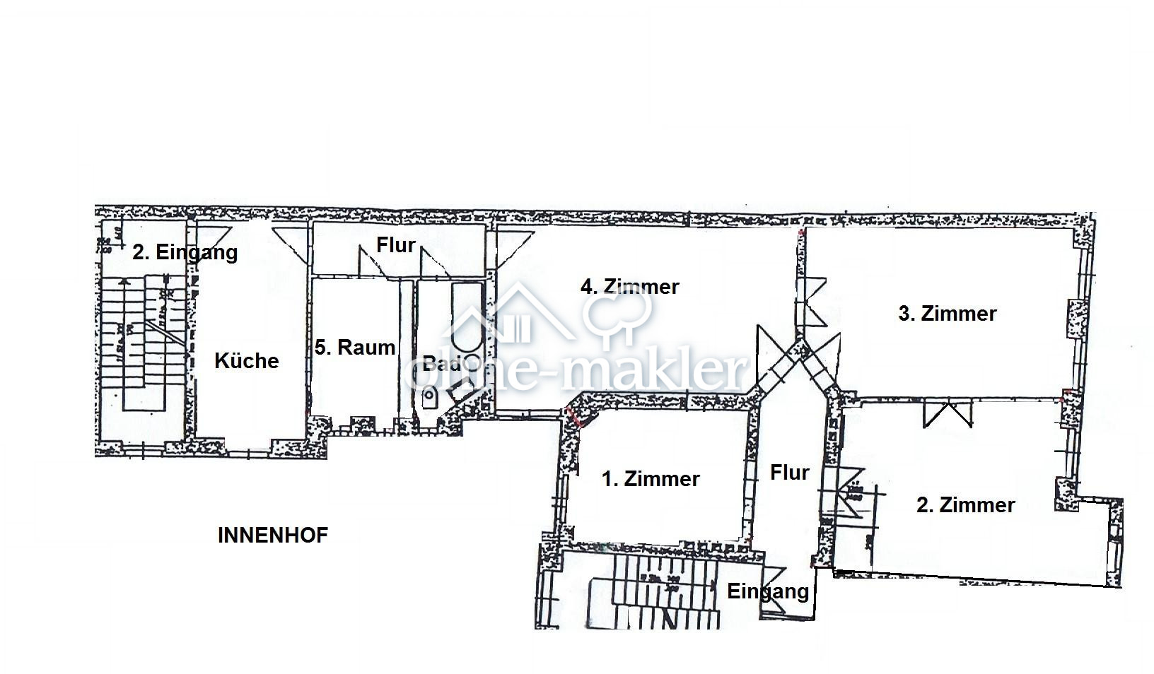
Die wunderschöne und großzügig errichtete Altbauwohnung besteht aus 5 Zimmern und hat eine Wohnfläche von ca. 151,1 m². Des weiteren hat die Wohnung zwei Eingänge, einen in der Küche über das Seitenflügeltreppenhaus und den anderen durch eine breite, wunderschön verzierte Flügeltür über das Vorderhaustreppenhaus. Beide Wohnungseingangstüren sind original erhalten. Die Beheizung erfolgt über eine Gas-Zentralheizung. Die komplette Elektrik wurde aufwendig modernisiert. Keller, Parkett Bemerkungen: Im Erkerzimmer liegt das Originaltafelparkett und in dem linken Straßenzimmer und im Berliner Zimmer liegt noch das Originaleichenparkett im Fischgrätenmuster, die aufwendig aufgearbeitet worden sind. Der Flur im Vorderhaus und im Seitenflügel und das Hofzimmer im Vorderhaus bewirken durch den hochwertig aufgearbeiteten Originaldielenboden ein wunderschönes Altbauflair. Die zahlreichen Verzierungen der wunderschönen Originalaltbautüren mit Originalprofilen, davon drei besonders schöne Flügeltüren, spiegeln den Zustand wie vor ca. 125 Jahren wider, so daß die Altbauatmosphäre den Besucher willkommen heißt. In den Straßenzimmern und im Berliner Zimmer finden Sie Originalstuck an der Decke. Das Berliner Zimmer und das Hofzimmer im Vorderhaus sind jeweils durch einen französischen Balkon sehr hell. Der Boden im Badezimmer ist diagonal weiß gefliest und die Wände bis ca. 2,20 Meter hoch ebenfalls weiß gefliest. Das Badezimmer verfügt über eine Badewanne, 2 Handwaschbecken und eine Toilette sowie ein Fenster (Tageslicht-Bad) zur Belüftung. Die Küche ist diagonal weiß gefliest, hat einen weißen Fliesenspiegel und ist mit ca. 15m² sehr großzügig geschnitten. Die zusätzliche Eingangstür in der Küche kann von Dienstboten und Lieferanten genutzt werden, um die Ungestörtheit des Vorderhauses zu wahren.Energieträger: Gas
Makleranfragen nicht erwünscht. Nach § 7 UWG sind unaufgeforderte Kontaktaufnahmen durch Makler ohne ausdrückliche Einwilligung des Empfängers verboten!
ohne-makler (OM) ist weder Anbieter noch Vermittler der Immobilie. OM betreibt eine Plattform für Immobilieneigentümer, die unter anderem die gleichzeitige Veröffentlichung einzelner Inserate auf mehreren Immobilienportalen ermöglicht. Die Inhalte dieser Inserate werden ausschließlich von Dritten verantwortet. Für die Richtigkeit, Vollständigkeit oder Rechtmäßigkeit der Angaben übernimmt OM keine Haftung. Hinweise auf mögliche Rechtsverstöße können jederzeit gemeldet werden und werden nach Prüfung umgehend bearbeitet.
Ähnliche Angebote
So funktioniert es
- Alle neuen Anzeigen matchen wir kostenlos mit Deinen Suchparametern.
- Passende Angebote senden wir Dir in einer E-Mail pro Tag.
- Du kannst auch verschiedene Suchen anlegen und Dich jederzeit abmelden. Mehr dazu





