Objektdaten
Objektbeschreibung
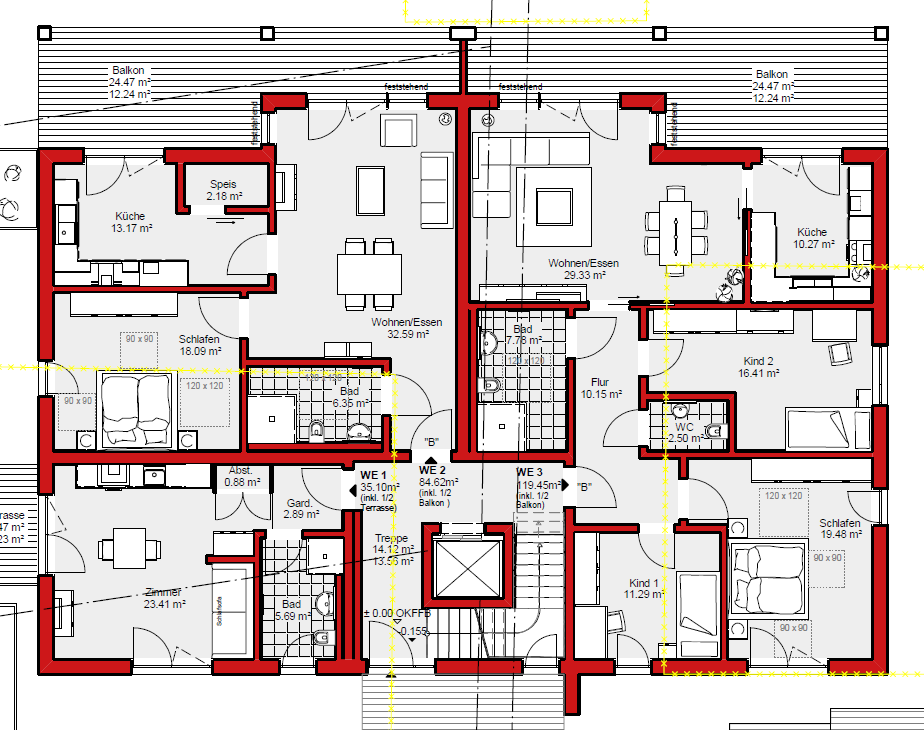
Objektbeschreibung Wundervoll geschnittene 2 Zimmerwohnung im Erdgeschoss mit großem Gartenanteil direkt im Herzen von Kriftel!Geschlossene Küche!Es stehen auch aktuell noch weitere 1 bis 4 Zimmer Wohnungen in diesem wunderschönen Neubau zur Verfügung, fragen Sie einfach an.Hier handelt es sich hier um Wohnung 2 im EG - siehe in den Grundrissen. Raumaufteilung Moderne offenen Raumaufteilung mit großem wunderschönen Garten siehe im Bild: Grundriss EG Wohnung 2 (Linke Seite) Die Wohnung ist sehr hochwertig mit FBH und ist komplett schlüsselfertig ausgestattet.Durch alle Etagen führt ein Aufzug, so das alles barrierefrei und Stufenlos erreichbar ist, auch für Rollstuhl oder Kinderwagen geeignet !!!So funktioniert es
- Alle neuen Anzeigen matchen wir kostenlos mit Deinen Suchparametern.
- Passende Angebote senden wir Dir in einer E-Mail pro Tag.
- Du kannst auch verschiedene Suchen anlegen und Dich jederzeit abmelden. Mehr dazu




