Kaufpreis 230.000 €
Zimmer 2
Größe 58 m²
93413 Cham
Objektdaten
Veröffentlicht am: 22. Januar 2026
Frei ab: 1. Dezember 2026
Energieausweis: Liegt bei der Besichtigung vor
Danke! Bitte bestätige Deine E-Mail-Adresse – wir haben Dir soeben eine Mail geschickt.
Es gab ein Problem beim Absenden. Bitte versuche es erneut.
Bitte bestätige Deine E-Mail-Adresse, um Updates zu erhalten.
Objektbeschreibung
Achtung! Aus Datenschutzgründen dürfen wir nur Unterlagen versenden wenn uns die komplette Anschrift und Telefonnummer eines Interessenten vorliegt.
Bitte bedenken Sie das bei Ihrer Anfrage und Sie erhalten die gewünschten Informationen.
Vielen Dank.
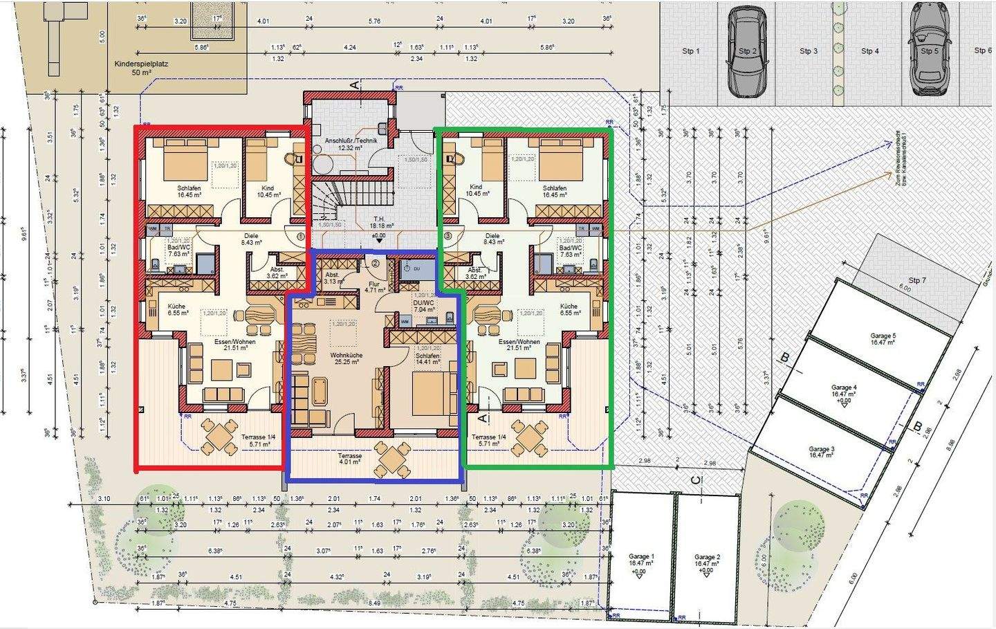
Kurzübersicht: Baujahr: 2026, Wohnfläche: 58,55 m², Grundstück: anteilig, Heizung: Luft-Wasser-Wärmepumpe, Energieausweis: nicht erforderlich.
Aufteilung:
EG: Wohnen/Küche, Schlafen, Bad, Abstellen, Terrasse.
Ausstattung:
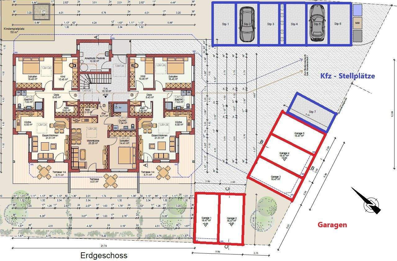
Die Immobilie wird in bevorzugter Lage von Cham Janahof gebaut. Die Fertigstellung ist Dezember 2026. Das Objekt wird komplett schlüsselfertig erstellt inkl. der Außenanlagen. Ebenfalls sind im Preis bereits 1 Garage und 1 Kfz.- Stellplätze enthalten.
Die Bauausführung erfolgt nach KfW 55 Effizienzhaus und den „Anerkannten Regeln der Technik“ und wird von einem renommierten Bauträger durchgeführt der mehrere Reverenz Objekte nachweisen kann.
Durch die KfW 55 Bauweise ist ein zinsgünstiges Darlehen für den Käufer möglich.
So funktioniert es
- Alle neuen Anzeigen matchen wir kostenlos mit Deinen Suchparametern.
- Passende Angebote senden wir Dir in einer E-Mail pro Tag.
- Du kannst auch verschiedene Suchen anlegen und Dich jederzeit abmelden. Mehr dazu
Wir haben soeben eine E-Mail mit Deinem Suchauftrag an Dich geschickt. – Klicke in dieser Mail auf den Bestätigungslink und schon geht's los. Prüfe ggf. auch Deinen Spamordner.
Es gab ein Problem beim Absenden Deiner E-Mail-Adresse. Bitte versuche es erneut.
WARNUNG: Bitte bestätige Deine E-Mail-Adresse, um regelmäßige Updates zu erhalten.