Objektdaten
Objektbeschreibung
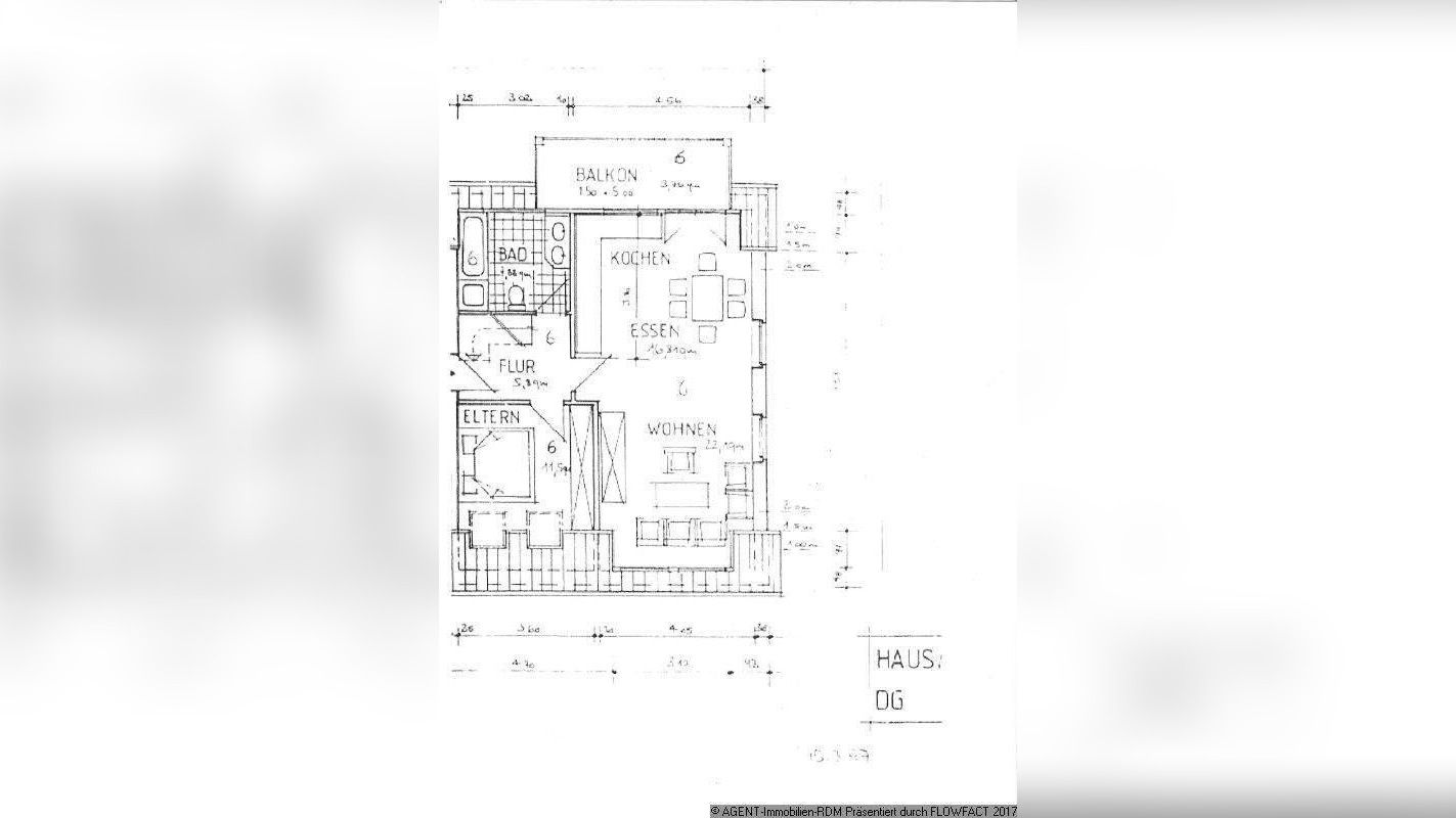
Kurzbeschreibung WEG in Bochum - wohnen in ruhiger u. harmonischer Lage Objekt 5 Eigentumswohnungen in Bochum - wohnen in ruhiger und harmonischer Lage. Die Liegenschaft befindet sich in einer alten gewachsenen Siedlung mit vielen guten Eigenschaften, die das Wohlgefühl sowie die Wohnqualität extrem positiv beeinflussen. "Zuhause" ist da, wo man sich wohl fühlt. Wir bieten Ihnen die traumhaft schöne Wohnung im Dachgeschoss mit Balkon und großem Gemeinschaftsgarten zum Kauf an. Die Wohnung hat eine Wohnfläche von ca. 68,84 m². Die Eigentumswohnanlage mit 12 Wohneinheiten besteht aus 2 freistehenden Häusern auf Eigengrund und einem Garagenhof sowie Pkw-Stellplätzen. Das Haus wurde im Jahr 1924 erbaut. In den Jahren 1996 bis 2006 erfolgte eine aufwändige Modernisierung der Wohnungen bzw. der Ausbau der Dachflächen.Das Dach wurde zu Wohnzwecken ausgebaut und eine Modernisierung der Dachpfannen nebst Dämmung erfolgte. Die Versorgungsleitungen wie Strom, Gas und Wasser sowie Abwasser wurden erneuert. Holzbalkone wurden nach erteilter Baugenehmigung montiert; diese werten die Liegenschaft extrem auf. Im Jahr 2025 erfolgte eine Neulackierung inkl. Neuanstrich und Ausbesserung der Balkone. Teilweise wurden die Balkone auch erneuert. In den Wohnungen wurden ebenfalls die Fenster und Türen in den vorgenannten Jahren erneuert. Desweiteren erfolgte in dem v.g. Zeitraum auch die Sanierung des Badezimmers.Ähnliche Angebote
So funktioniert es
- Alle neuen Anzeigen matchen wir kostenlos mit Deinen Suchparametern.
- Passende Angebote senden wir Dir in einer E-Mail pro Tag.
- Du kannst auch verschiedene Suchen anlegen und Dich jederzeit abmelden. Mehr dazu




