Kaufpreis 285.000 €
Zimmer 3
Größe 80 m²
57537 Mittelhof
Objektdaten
Veröffentlicht am: 23. Januar 2026
Energieausweis: Liegt bei der Besichtigung vor
Danke! Bitte bestätige Deine E-Mail-Adresse – wir haben Dir soeben eine Mail geschickt.
Es gab ein Problem beim Absenden. Bitte versuche es erneut.
Bitte bestätige Deine E-Mail-Adresse, um Updates zu erhalten.
Objektbeschreibung
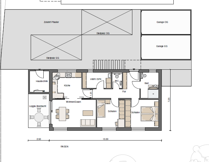
In beliebter Wohn- und Aussichtslage von Mittelhof mit herrlichem Blick in Wald und Wiesen entstehen in naher Zukunft 2026 zwei ansprechende, schlüsselfertige Eigentumswohnungen mit einer hochwertigen Ausstattung, welche sich aufgrund von Größe/Raumaufteilung ideal für Paare, Senioren oder den kleinen Personenhaushalt eignen!Die ansprechende Eigentumswohnung, welche sich im Erdgeschoss befindet, macht insbesondere "Wohnen auf einer Ebene" möglich. Hier wurde vom Planungsbeginn an auf ein barrierefreies Raumkonzept mit einer modernen und ansprechenden Innenausstattung geachtet, so dass man ein gemütliches Zuhause schafft.Das ebenerdig angelegte Gartengrundstück mit angrenzender und überdachter Loggia ist ebenfalls bestens nutzbar, da auch hier auf barrierefreie Nutzung geachtet wurde. Das Grundstück wird mit Rasen eingesät, so dass zusätzliche und individuelle Gestaltungsmöglichkeiten jederzeit ihren Platz finden können. Zum Angebot gehören ein KFZ-Stellplatz sowie eine Garage, welche sich unmittelbar am Wohnhaus befinden. Das Haus wird als schlüsselfertige Baumaßnahme errichtet, so dass Gewährleistungsansprüche übertragen oder auch Ansprechpartner des ausführenden Bauunternehmens genannt werden können. Alle Gewerke können in einer detaillierten Baubeschreibung erlesen werden; des Weiteren können Sonderwünsche berücksichtigt werden, welche ggfls. mit einem Mehraufwand zu Buche schlagen.Insgesamt verfügt die Eigentumswohnung über rd. 80 m² Wohnfläche, welche sich wie folgt aufteilt:Flur, offener Wohn- Essbereich mit angrenzender Wohnküche und Ausgang zum Garten sowie zur überdachten Loggia, 2 Schlafzimmer, wertiges Bad mit ebenerdiger Dusche und WC, Gäste-WC, Hauswirtschafts- bzw. Anschlussraum/AbstellraumDas Objekt wird als Effizienzhaus Standard 55 erstellt und fällt somit in das KfW-Förderprogramm 296.Weitere Informationen erhalten Sie gerne von uns!______________________________Beim Erwerb einer Wohnung zur Kapitalanlage kann aufgrund des Wachstumschancengesetz, siehe auch § 7 Abs. 5 EstG, die degressive Abschreibung in Anspruch genommen werden; heißt im Jahr des Kaufes und Fertigstellung können bis zu 5 % der Investitionssumme sechs Jahre lang geltend gemacht werden Des Weiteren kann ein KfW-Förderkredit bis zu 100.000,00 € für den klimafreundlichen Neubau für Eigennutzer als auch Kapitalanleger beantragt werden (bis zu 35 Jahre Laufzeit und bis zu 10 Jahre Zinsbindung, 0,01 % effektiver Jahreszins). Ein Rechtsanspruch auf die Förderung besteht nicht; die Förderung steht unter dem Vorbehalt der Verfügbarkeit von Bundesmitteln.
So funktioniert es
- Alle neuen Anzeigen matchen wir kostenlos mit Deinen Suchparametern.
- Passende Angebote senden wir Dir in einer E-Mail pro Tag.
- Du kannst auch verschiedene Suchen anlegen und Dich jederzeit abmelden. Mehr dazu
Wir haben soeben eine E-Mail mit Deinem Suchauftrag an Dich geschickt. – Klicke in dieser Mail auf den Bestätigungslink und schon geht's los. Prüfe ggf. auch Deinen Spamordner.
Es gab ein Problem beim Absenden Deiner E-Mail-Adresse. Bitte versuche es erneut.
WARNUNG: Bitte bestätige Deine E-Mail-Adresse, um regelmäßige Updates zu erhalten.