Ein neues Lebensgefühl im energieeffizienten Eigenheim!

Kaufpreis 393.700 €
Zimmer 4
Größe 102 m²
09114 Chemnitz

Objektdaten

Veröffentlicht am: 24. Januar 2026
Baujahr: 2024
Energieausweis: Liegt bei der Besichtigung vor
Neu

Über ähnliche Angebote direkt informiert werden

  • Objektbeschreibung

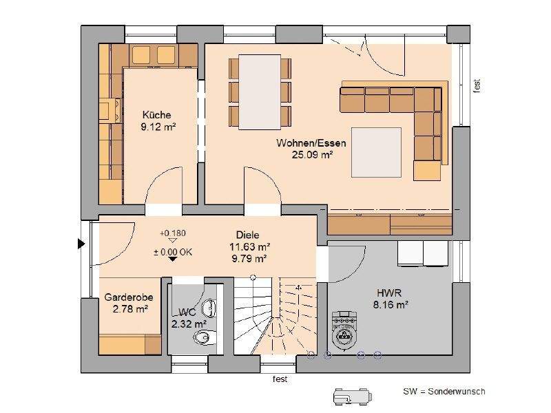
    Das Haus Loop ist ein Highlight für die ganze Familie. Es überzeugt mit sehr guter Wohnflächenausnutzung und einem schicken Design.Große Fenster lassen viel Licht in den Innenraum, der großzügige Wohn- und Essbereich erhält eine markante Eckverglasung und bietet direkten Zugang in den eigenen Garten. An den Wohnbereich schließt die geräumige Küche an, die zum gemeinsamen Kochen mit Freunden und Verwandten einlädt. Das praktisch aufgeteilte Dachgeschoss bietet zwei Schlafräume, ein Familienbadezimmer und ein zusätzliches Home-Office.Dieses Haus wird nach Ihren individuellen Wünschen geplant und ausgestattet!

    Ähnliche Angebote

    So funktioniert es

    • Alle neuen Anzeigen matchen wir kostenlos mit Deinen Suchparametern.
    • Passende Angebote senden wir Dir in einer E-Mail pro Tag.
    • Du kannst auch verschiedene Suchen anlegen und Dich jederzeit abmelden. Mehr dazu
    Nach oben scrollen