Objektdaten
Objektbeschreibung
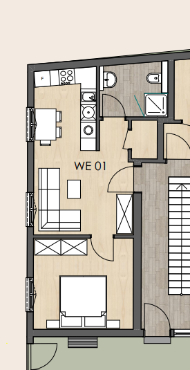
Die rollstuhlgerechte 1-Zimmer-Wohnung mit ca. 44 m² Wohnfläche befindet sich in einem angenehmen Wohnhaus in zentraler Lage von Osthofen. Durch die zentrale Lage sind Einkaufsmöglichkeiten, öffentliche Verkehrsmittel sowie weitere Einrichtungen des täglichen Bedarfs schnell erreichbar.So funktioniert es
- Alle neuen Anzeigen matchen wir kostenlos mit Deinen Suchparametern.
- Passende Angebote senden wir Dir in einer E-Mail pro Tag.
- Du kannst auch verschiedene Suchen anlegen und Dich jederzeit abmelden. Mehr dazu




