Objektdaten
Objektbeschreibung
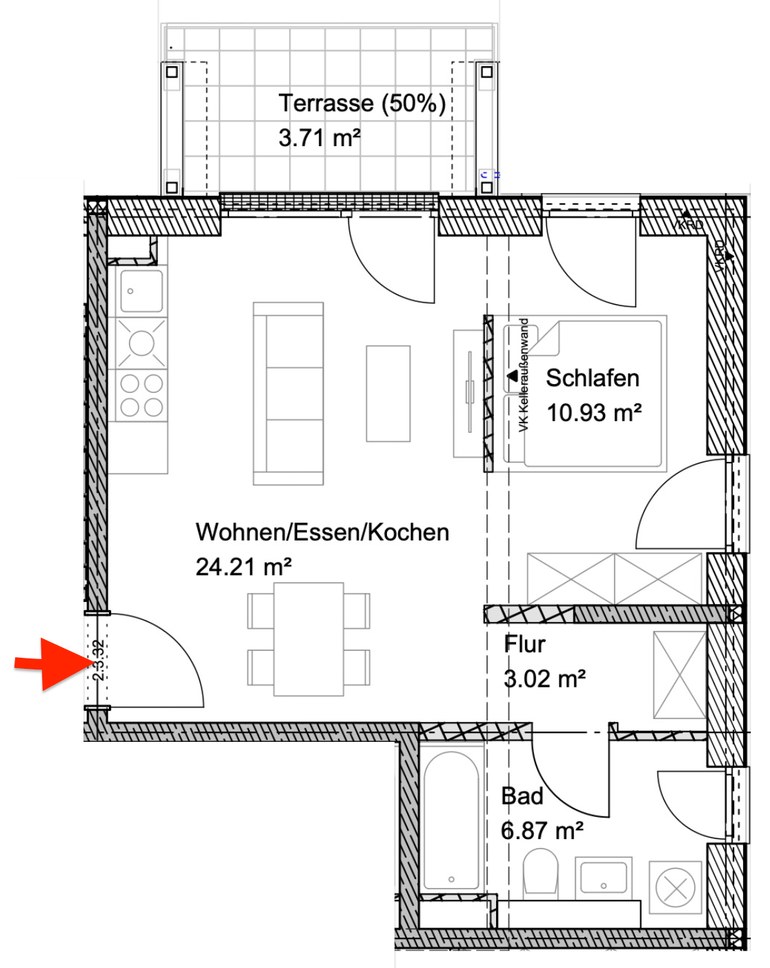
WILLKOMMEN IN DEN SUN SHINE LOFTS!Stellen Sie sich vor, Sie werden Teil eines der innovativsten Stadtentwicklungsprojekte Europas! Auf dem Gelände der ehemaligen Lagarde-Kaserne in Bamberg, die über 69 Jahre lang Teil des US-amerikanischen Militärstandorts war, entsteht derzeit ein völlig neues Stadtviertel. Seit dem Abzug der Truppen im Jahr 2014 wird hier visionär geplant und nachhaltig gebaut – mit einem klaren Fokus auf modernes, urbanes Leben.Das neue Quartier vereint Wohnen, Arbeiten, Kultur, Dienstleistungen und soziale Einrichtungen auf ideale Weise. Die Stadtwerke Bamberg spielen dabei eine zentrale Rolle: Mit zukunftsweisenden Wärme- und Mobilitätskonzepten tragen sie maßgeblich dazu bei, dass das Projekt zu einem innerstädtischen Vorzeigeviertel in Sachen Umweltfreundlichkeit und Nachhaltigkeit wird.Die Sunshine Lofts entstehen in Gebäuden, die ursprünglich als eingeschossige Trakte für ein Reiterregiment der bayerischen Kavallerie errichtet wurden. Durch die behutsame Integration der historischen Bausubstanz entsteht ein einzigartiges Wohngefühl mit Charakter und Geschichte – modern interpretiert und hochwertig umgesetzt.Das hier angebotene 2-Zimmer-Wohnung liegt im Erdgeschoß und hat eine Wohnfläche von ca.44,56 m².Ähnliche Angebote
So funktioniert es
- Alle neuen Anzeigen matchen wir kostenlos mit Deinen Suchparametern.
- Passende Angebote senden wir Dir in einer E-Mail pro Tag.
- Du kannst auch verschiedene Suchen anlegen und Dich jederzeit abmelden. Mehr dazu





