Objektdaten
Objektbeschreibung
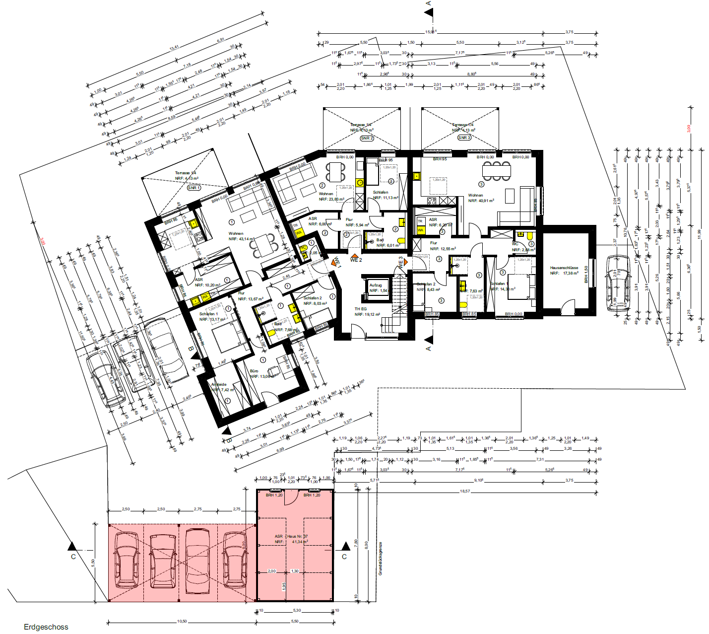
In sehr guter Ortslage von Uelsen erstellen wir dieses attraktive Mehrfamilienhaus mit insgesamt sechs Eigentumswohnungen. Drei Wohnungen im Erdgeschoss und drei Wohnungen im Obergeschoss. Das Gebäude wird in massiver Bauweise erstellt und erhält einen attraktiven Verblendstein der Firma Deppe in Uelsen. Die Wärmeerzeugung erfolgt hier über eine Luft-Wasser-Wärmepumpe. Die Wohnungen im Obergeschoss können neben dem Treppenhaus auch über einen Personenaufzug erreicht werden. Somit bietet unser Bauvorhaben höchsten Wohnkomfort in jeder Lebenslage und jedem Alter. Im Außenbereich befinden sich die PKW-Stellplätze sowie ein großer Fahrradschuppen. Fahrräder mit E-Antrieb können dort über die eigene, abschließbare Steckdose geladen werden. Für Elektrofahrzeuge ist jeder PKW-Stellplatz mit einer Zuleitung ausgestattet. Gegenüber großen Wohnanlagen bieten wir mit diesem kleineren Bauvorhaben eine sehr überschaubare und familiäre Situation auf einem attraktiven Grundstück. Das Vorhaben befindet sich aktuell in der Herstellungsphase und wird zum Jahreswechsel 2026/2027 fertiggestellt.So funktioniert es
- Alle neuen Anzeigen matchen wir kostenlos mit Deinen Suchparametern.
- Passende Angebote senden wir Dir in einer E-Mail pro Tag.
- Du kannst auch verschiedene Suchen anlegen und Dich jederzeit abmelden. Mehr dazu




