Kaufpreis 795.000 €
Zimmer 5
Größe 122 m²
82449 Uffing a. Staffelsee
Objektdaten
Veröffentlicht am: 26. Januar 2026
Energieausweis: Liegt bei der Besichtigung vor
Danke! Bitte bestätige Deine E-Mail-Adresse – wir haben Dir soeben eine Mail geschickt.
Es gab ein Problem beim Absenden. Bitte versuche es erneut.
Bitte bestätige Deine E-Mail-Adresse, um Updates zu erhalten.
Objektbeschreibung
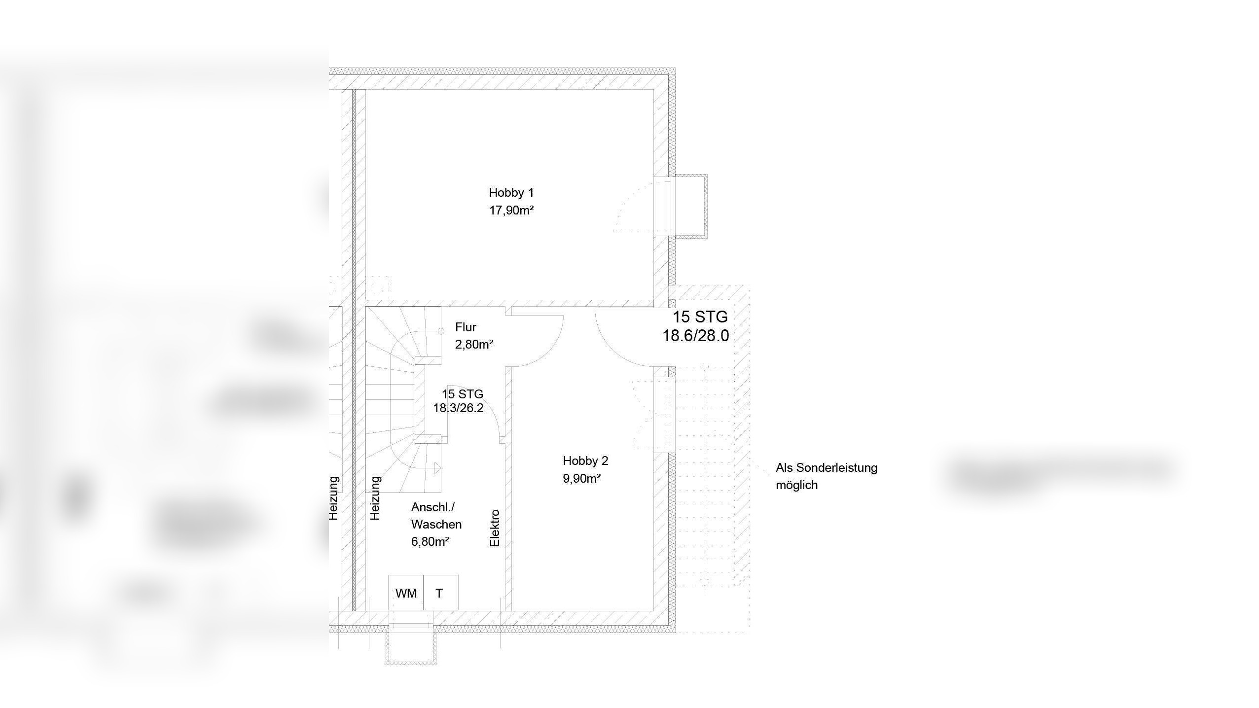
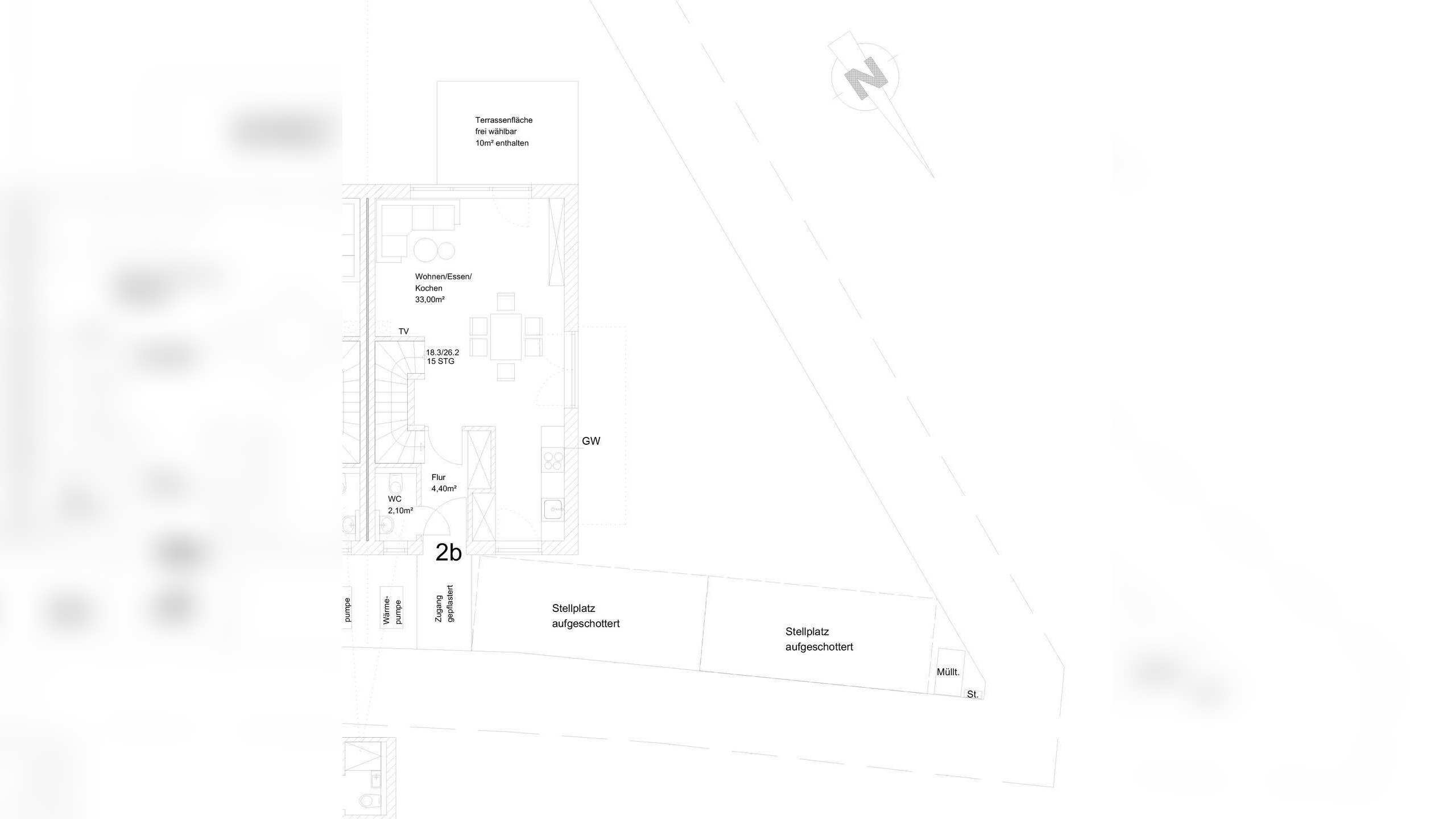
Den See und die Berge zum Greifen nah!Dieses energieeffiziente, gefällige und rustikal/modern gestaltete KfW 55 Doppelhaus entsteht auf einem großen, sonnigen Grundstück im beliebten Ort Uffing, nur ca. 350 Meter vom schönen Staffelsee entfernt.Der regional ansässige Bauträger legt höchsten Wert auf qualitativ wertige Baustoffe sowie fachgerechte Umsetzung. Mit geschickter Grundrissplanung und raffinierter Architektur binden sich diese Gebäude gefällig in die oberbayerische Landschaft ein.Neben wärmegedämmten Außenziegeln mit Perlit-Füllung werden moderne und energieeffiziente Dämmmaterialien und Baustoffe mit einer modernen Luftwärmepumpenheizung abgestimmt. Diese bescheren Ihnen künftig niedrige Energiekosten.Auch im Inneren werden ausschließlich wertige Materialien verwendet. So verfügen die Wohnungen z.B. über Fenster mit 3-fach-Verglasung, Fussbodenheizung, qualitative Bodenbeläge nach Wahl sowie solide Sanitärausstattungen. Und dies bereits im Standard! Ellenlange Aufpreislisten für Sonderausstattungen sind hier nicht nötig.Das Haus verfügt über Erdgeschoß, Obergeschoß sowie ein ausgebautes Dachgeschoß. Dank 5 geräumigen Zimmern sowie Hobbyraum bietet dieses Haus Platz für die ganze Familie!Der Zimmermannsdachstuhl mit sichtbaren Holzbalken im Dachgeschoss wird ebenfalls aufwändig gedämmt und sorgt mit seiner atemberaubenden Deckenhöhe für ein gemütliches Wohnklima.Die Süd- Westausrichtung sorgt für optimale Belichtung den ganzen Tag. Im aktuellen Zustand kann auf die Planung, die Grundrisse sowie Materialauswahl vom Käufer Einfluss genommen werden. Im Erdgeschoss wäre beispielsweise auch eine Dusche möglich. Auch sind Eigenleistungen in diversen Gewerken mit Preisnachlass möglich.Insgesamt entstehen auf diesem Grundstück 2 Wohnhäuser mit jeweils 5 geplanten Wohneinheiten sowie ein Doppelhaus.Der Kaufpreis setzt sich wie folgt zusammen:Kaufpreis Haus 795.000 € + Kaufpreis Stellplätze 15.000 € = Gesamtkaufpreis 810.000 €Der Energieausweis ist derzeit in Bearbeitung.
So funktioniert es
- Alle neuen Anzeigen matchen wir kostenlos mit Deinen Suchparametern.
- Passende Angebote senden wir Dir in einer E-Mail pro Tag.
- Du kannst auch verschiedene Suchen anlegen und Dich jederzeit abmelden. Mehr dazu
Wir haben soeben eine E-Mail mit Deinem Suchauftrag an Dich geschickt. – Klicke in dieser Mail auf den Bestätigungslink und schon geht's los. Prüfe ggf. auch Deinen Spamordner.
Es gab ein Problem beim Absenden Deiner E-Mail-Adresse. Bitte versuche es erneut.
WARNUNG: Bitte bestätige Deine E-Mail-Adresse, um regelmäßige Updates zu erhalten.