Objektdaten
Objektbeschreibung
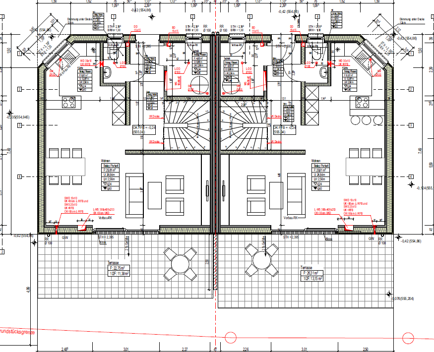
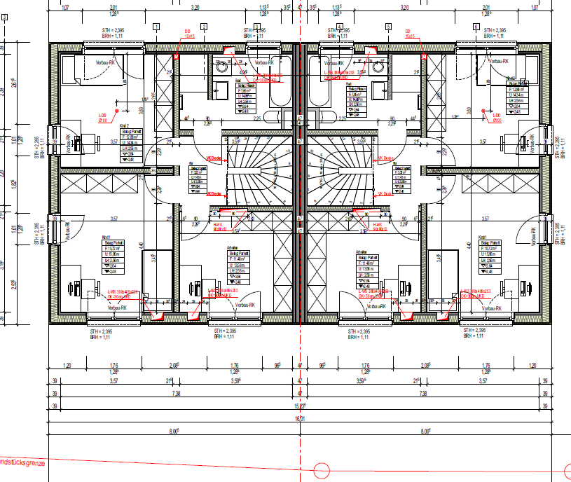
Die Projektplanung sieht vor das dieses Objekt über die Domus Regiobau GmbH gebaut wird. Diese ist schon seid Jahren ein zuverlässiger und effektiver Partner wenn es um den Bau von Häusern rund um die Region Schwabmünchen geht. Bei dem Objekt ist es aktuell noch möglich auf jegliche Wünsche im Rahmen des gezeigten Bauplans einzugehen genauso auch von der inneren Planung sind Ihnen noch alle Möglichkeiten offen.Entdecken Sie Ihr neues Zuhause in dieser charmanten Doppelhaushälfte (Haus D). Mit einer Wohnfläche von ca. 115 m² bietet dieses Haus ausreichend Platz für Familien und Komfortliebhaber. Das Objekt liegt am Ende einer Zufahrtsstraße.Die Immobilie verfügt über 4 Zimmer, darunter 3 geräumige Schlafzimmer, die Ruhe und Privatsphäre versprechen. Ein modernes Badezimmer sorgt für Bequemlichkeit und Stil. Das Grundstück mit einer Größe von ca. 168 m² bietet Ihnen die Möglichkeit, Ihren grünen Daumen auszuleben oder einfach nur zu entspannen. Ein besonderes Highlight ist die nahezu Einmalige Lage mitten in der Ortes. Stellplatz und/oder Garage kann für zusätzliche 14.990 € erworben werden.Die Grunderwerbssteuer wird nur auf den Grundstückspreis erhoben, da Sie den Bauauftrag gesondert an die Domus GmbH vergeben.Im Kaufpreis ist der anteilige Erwerb der Allgemeinflächen bereits berücksichtigt.Diese Doppelhaushälfte vereint Funktionalität mit einem ansprechenden Design und wartet darauf, von Ihnen persönlich zum Leben erweckt zu werden.So funktioniert es
- Alle neuen Anzeigen matchen wir kostenlos mit Deinen Suchparametern.
- Passende Angebote senden wir Dir in einer E-Mail pro Tag.
- Du kannst auch verschiedene Suchen anlegen und Dich jederzeit abmelden. Mehr dazu




