Kaufpreis 180.000 €
Zimmer 2
Größe 49 m²
15732 Eichwalde
Objektdaten
Veröffentlicht am: 27. Januar 2026
Frei ab: 1. Februar 2026
Energieausweis: Liegt bei der Besichtigung vor
Danke! Bitte bestätige Deine E-Mail-Adresse – wir haben Dir soeben eine Mail geschickt.
Es gab ein Problem beim Absenden. Bitte versuche es erneut.
Bitte bestätige Deine E-Mail-Adresse, um Updates zu erhalten.
Objektbeschreibung
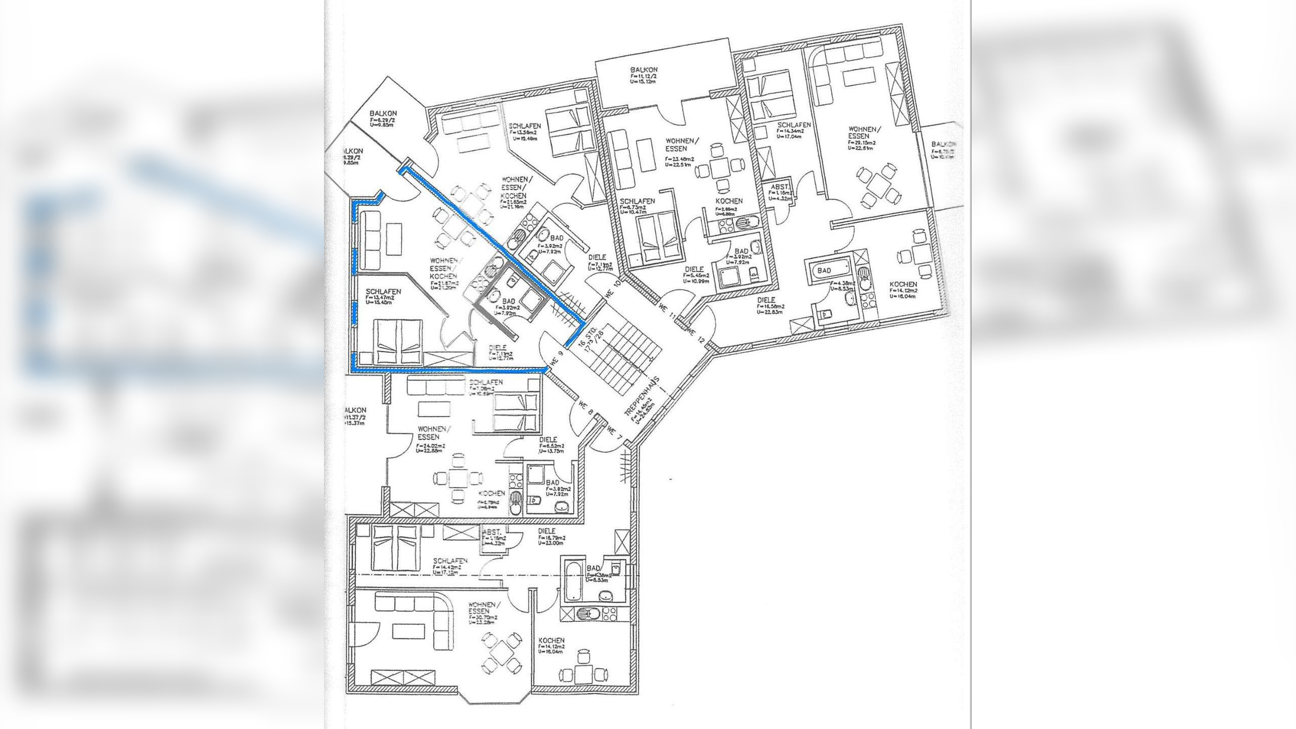
Die hier zum Verkauf angebotene 2 Raumwohnung hat eine Wohnfläche von ca. 49,32 qm und befindet sich im 1.Obergeschoss eines großen gepflegten Mehrfamilienhauses mit 16 Wohneinheiten in bester Lage von Eichwalde. Die Wohnung ist aktuell vermietet und ist ideal als Kapitalanlage. Das Mehrfamilienhaus ist 1996 In Massivbauweise errichtet worden und ist mit seinem hell renovierten Treppenhaus und Kellerräumen in einem sehr gepflegten Zustand. Für die Sauberkeit dieser Räumlichkeiten sowie der Gartenanlage wird von der Hausverwaltung eine externe Firma beauftragt.
Die sehr schön geschnittene Wohnung gliedert sich auf in einen Flur, ein neu gefliestes Bad ohne Fenster mit Dusche, WC und Waschplatz, einem Schlafzimmer mit genügend Platz für ein großes Bett und Kleiderschrank von ca.13,5 qm sowie einem Wohnzimmer mit offener Küche und Essbereich. Dieser lichtdurchflutete Raum mit einer Größe von 21,67 qm ist das Herzstück der Wohnung und verfügt über einen Zutritt zu einem kleinen Balkon, von dem Sie einen fantastischen Blick in den begrünten Vorgarten der Wohnanlage genießen können. Zugehörig zu dieser Wohneinheit ist ein Stellplatz im Innenbereich der Gartenanlage sowie 1 Kellerraum. Zusätzlich kann von den Mietern des Hauses ein Fahrradkeller sowie ein Wasch-Trockenraum genutzt werden.
So funktioniert es
- Alle neuen Anzeigen matchen wir kostenlos mit Deinen Suchparametern.
- Passende Angebote senden wir Dir in einer E-Mail pro Tag.
- Du kannst auch verschiedene Suchen anlegen und Dich jederzeit abmelden. Mehr dazu
Wir haben soeben eine E-Mail mit Deinem Suchauftrag an Dich geschickt. – Klicke in dieser Mail auf den Bestätigungslink und schon geht's los. Prüfe ggf. auch Deinen Spamordner.
Es gab ein Problem beim Absenden Deiner E-Mail-Adresse. Bitte versuche es erneut.
WARNUNG: Bitte bestätige Deine E-Mail-Adresse, um regelmäßige Updates zu erhalten.