Kaufpreis 998.000 €
Zimmer 13
Größe 305 m²
49545 Tecklenburg
Objektdaten
Veröffentlicht am: 28. Januar 2026
Energieausweis: Liegt bei der Besichtigung vor
Danke! Bitte bestätige Deine E-Mail-Adresse – wir haben Dir soeben eine Mail geschickt.
Es gab ein Problem beim Absenden. Bitte versuche es erneut.
Bitte bestätige Deine E-Mail-Adresse, um Updates zu erhalten.
Objektbeschreibung
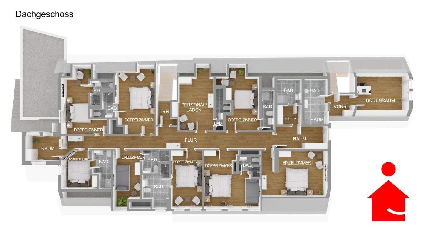
Zum Verkauf steht ein beeindruckendes, gut vermietetes Fachwerkhaus aus dem Ursprung ca.1680, dass durch die Altstadtsatzung von Tecklenburg unter Denkmalschutz steht und sich im Herzen von Tecklenburg befindet.Diese Immobilie rechnet sich ab dem ersten Tag!Mit zwei langfristig, gut verpachteten Gewerbeeinheiten und 8. Apartmentwohnungen haben Sie eine sichere gut diversifizierte Vermietung.Die Immobilie besticht durch eine sorgfältige Sanierung, die seit 1992, fortlaufend stattfand und sowohl die äußere Fassade als auch die Innenräume umfasste. Die Sanierungsarbeiten wurden in enger Abstimmung mit der Denkmalpflegebehörde durchgeführt, wodurch das historische Erscheinungsbild des Gebäudes erhalten blieb. Besondere Merkmale wie die originalen Sandsteinsegmente und die charakteristische Holzbalkenstruktur sind liebevoll in Stand gesetzt worden und verleihen dem Fachwerkhaus seinen unverwechselbaren Charme. Im Rahmen der Sanierungsarbeiten ist eine denkmalverträgliche Innenraumdämmung zur Verbesserung der energetischen Bilanz eingebracht worden. Zuletzt wurde 2023 die Heizungsalge erneuert.Das Haus erstreckt sich über zwei Stockwerke und bietet im Erdgeschoss großzügige, helle Räume, die flexibel als Gewerberäume genutzt werden können, während sich im Obergeschoss, voll ausgestattete, liebevoll eingerichtete Apartments befinden. Die zentrale Lage und die hohe Kaufkraft bieten hierbei langfristige Sicherheit bei der Vermietung.Die Immobilie profitiert weiterhin von ihrer exzellenten Lage mit Blick auf den malerischen Marktplatz und ist umgeben von einem ruhigen, wohlgestalteten Garten, der sich hervorragend für Pausen im Freien eignet und eine inspirierende Arbeitsatmosphäre schafft.
So funktioniert es
- Alle neuen Anzeigen matchen wir kostenlos mit Deinen Suchparametern.
- Passende Angebote senden wir Dir in einer E-Mail pro Tag.
- Du kannst auch verschiedene Suchen anlegen und Dich jederzeit abmelden. Mehr dazu
Wir haben soeben eine E-Mail mit Deinem Suchauftrag an Dich geschickt. – Klicke in dieser Mail auf den Bestätigungslink und schon geht's los. Prüfe ggf. auch Deinen Spamordner.
Es gab ein Problem beim Absenden Deiner E-Mail-Adresse. Bitte versuche es erneut.
WARNUNG: Bitte bestätige Deine E-Mail-Adresse, um regelmäßige Updates zu erhalten.