Kaufpreis 602.900 €
Zimmer 4
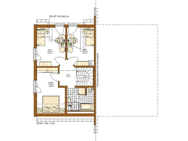
Größe 127 m²
86850 Fischach
Objektdaten
Veröffentlicht am: 29. Januar 2026
Energieausweis: Liegt bei der Besichtigung vor
Danke! Bitte bestätige Deine E-Mail-Adresse – wir haben Dir soeben eine Mail geschickt.
Es gab ein Problem beim Absenden. Bitte versuche es erneut.
Bitte bestätige Deine E-Mail-Adresse, um Updates zu erhalten.
Objektbeschreibung
Die vorgestellte Projektierung umfasst Leistungen entsprechend der Bau- und Leistungsbeschreibung CONCEPT als Grundlage für die weitere Planung und Kalkulation. In definierten Ausbaustufen werden hier umfangreiche Leistungen dargestellt - übersichtlich und transparent. Treffen Sie Ihre ganz persönliche Wahl: Das bezugsfertige Haus kann auch als Fastfertig, Technikfertig oder Ausbauhaus angeboten werden. Fassadengestaltungen und Farben gegen Aufpreis!Alles in bewährter RENSCH-HAUS Qualität:? Kostenfreie Bedarfsanalyse durch unsere qualifizierten Fachberater? Planungs- und Ingenieurleistungen (u.a. Statik, Nachweise für die Beantragung von Fördermitteln)? Ausstattungswelt mit großer Auswahl u.a. an Sanitärobjekten, Fliesen und Bodenbelägen von deutschen Markenherstellern? Produktion ausschließlich in Deutschland? Handwerkstradition aus Überzeugung - als Familienunternehmen seit über 145 Jahren in fünfter Generation? Lieferung und Montage (u.a. Transport, Kran, Gerüst, Baustellen-WC)? Effizienzhaus 40 - serienmäßig mit unserem Heiz- und Lüftungssystem (Frischluft-Wärmetechnik); eine Nachhaltigkeitszertifizierung nach QNG bieten wir Ihnen gerne an? Sommerlicher Hitzeschutz durch hohe Speicherfähigkeit der Konstruktion? Diffusionsoffene Außenwand, gefertigt aus natürlichen Rohstoffen? Gemeinsame Hausabnahme und Schlüsselübergabe zusammen mit unseren Bauherren? Alles aus einer Hand. Auf Wunsch mit Baunebengewerken (Keller, Fundamentplatte, Carport, Garage)? 30 Jahre Garantie auf die Tragkonstruktion und fünf Jahre Gewährleistung mit kostenfreiem KundendienstÜberzeugen Sie sich selbst. Sprechen Sie mit uns.
So funktioniert es
- Alle neuen Anzeigen matchen wir kostenlos mit Deinen Suchparametern.
- Passende Angebote senden wir Dir in einer E-Mail pro Tag.
- Du kannst auch verschiedene Suchen anlegen und Dich jederzeit abmelden. Mehr dazu
Wir haben soeben eine E-Mail mit Deinem Suchauftrag an Dich geschickt. – Klicke in dieser Mail auf den Bestätigungslink und schon geht's los. Prüfe ggf. auch Deinen Spamordner.
Es gab ein Problem beim Absenden Deiner E-Mail-Adresse. Bitte versuche es erneut.
WARNUNG: Bitte bestätige Deine E-Mail-Adresse, um regelmäßige Updates zu erhalten.