Objektdaten
Objektbeschreibung
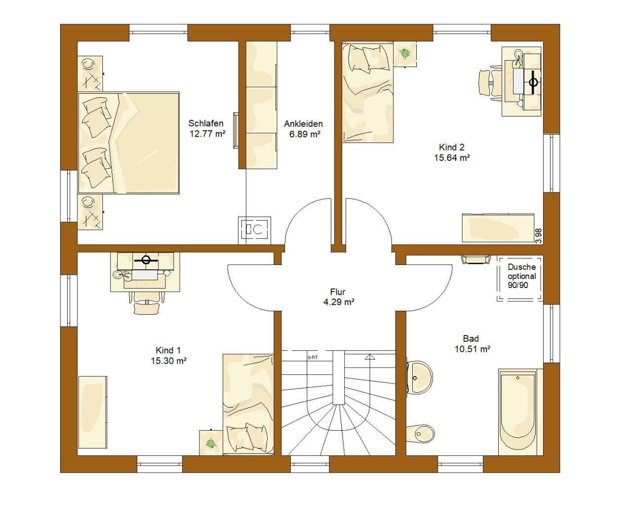
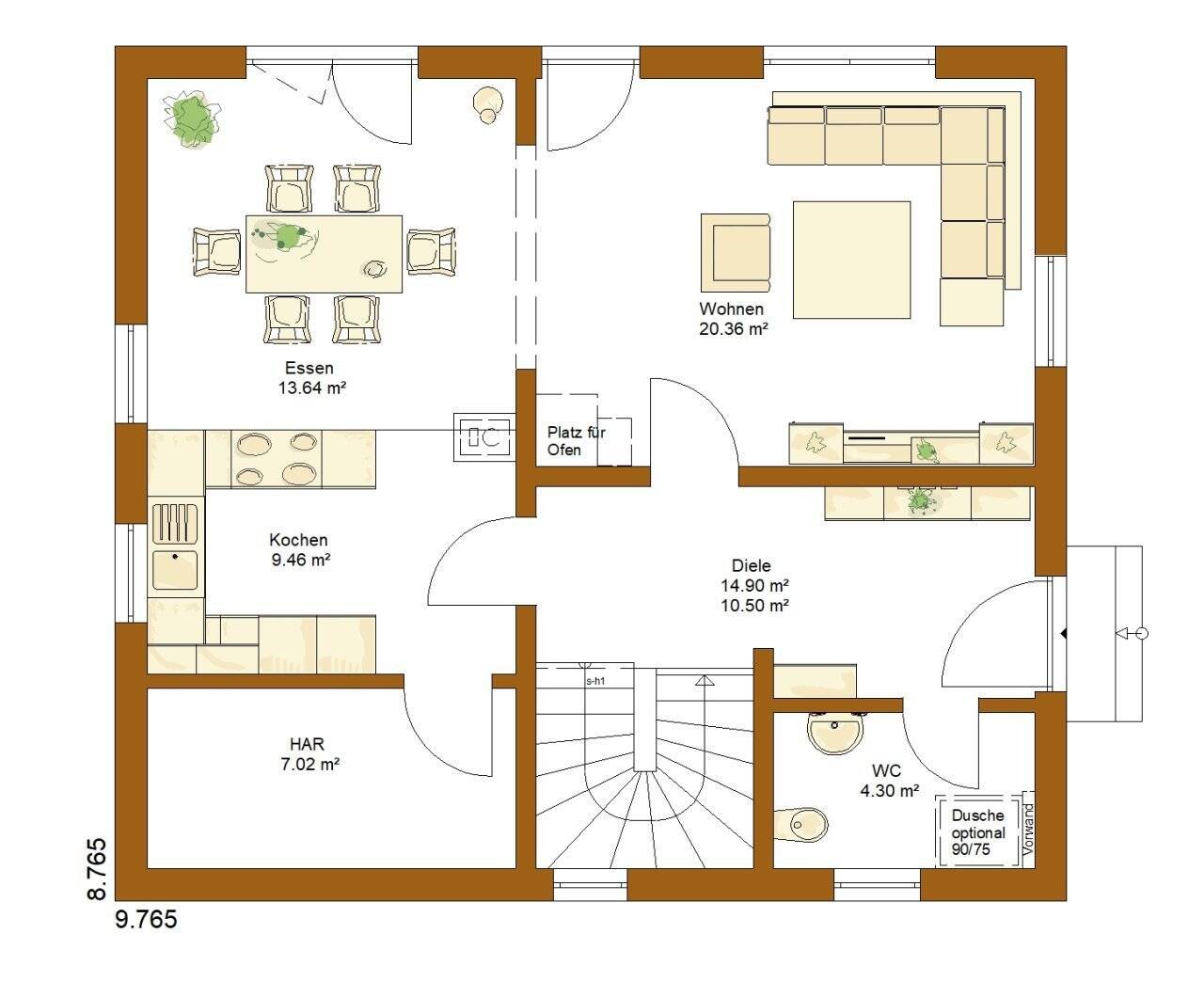
Überzeugend stilsicher und puristisch präsentiert sich das CLOU 135 mit Satteldach.Kochen und Essen auf über 23 m² und in direktem Anschluss das Wohnzimmer mit weiteren 20 m² schaffen Platz für die ganze Familie. Zwei geräumige Kinderzimmer, Familienbad, Elternschlafzimmer mit integrierter Ankleide finden im Obergeschoss ihren Platz.Ein modernes Familienbad vollendet den gelungenen GrundrissVerschiedene Grundrissvarianten und Architekturelemente sind möglich. Sprechen Sie bitte mit Ihrem Fachberater.So funktioniert es
- Alle neuen Anzeigen matchen wir kostenlos mit Deinen Suchparametern.
- Passende Angebote senden wir Dir in einer E-Mail pro Tag.
- Du kannst auch verschiedene Suchen anlegen und Dich jederzeit abmelden. Mehr dazu




