Objektdaten
Objektbeschreibung
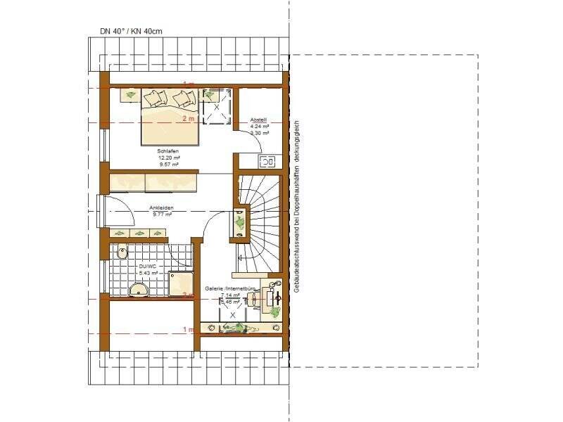
Das erstaunliche Raumprogramm der ZukunftHinter der klassischen Fassade dieses Doppelhauses verbirgt sich ein erstaunliches und zukunftsorientiertes Raumprogramm. Das gesamte Dachgeschoss ist als Rückzugsoase und als Ort der Ruhe für die Eltern konzipiert. In direktem Anschluss zum Schlaf- und Ankleidebereich befindet sich sogar ein eigenes Dusch-WC auf dieser Etage. Ebenso zweckmäßig ist das zur Treppe hin offen gestaltete Homeoffice, in dem es sich ungestört arbeiten lässt.Im Obergeschoss sind die beiden gleich großen Kinderzimmer. Auch das gemeinsame Badezimmer sowie ein Büro finden hier Platz.Im Erdgeschoss hingegen dreht sich alles um die Gemeinsamkeiten der Familie. Hier gibt es genügend Raum für gemütliche Fernsehabende vor dem Kamin oder das gemeinsame Frühstück am Sonntagmorgen.So funktioniert es
- Alle neuen Anzeigen matchen wir kostenlos mit Deinen Suchparametern.
- Passende Angebote senden wir Dir in einer E-Mail pro Tag.
- Du kannst auch verschiedene Suchen anlegen und Dich jederzeit abmelden. Mehr dazu

