Objektdaten
Objektbeschreibung
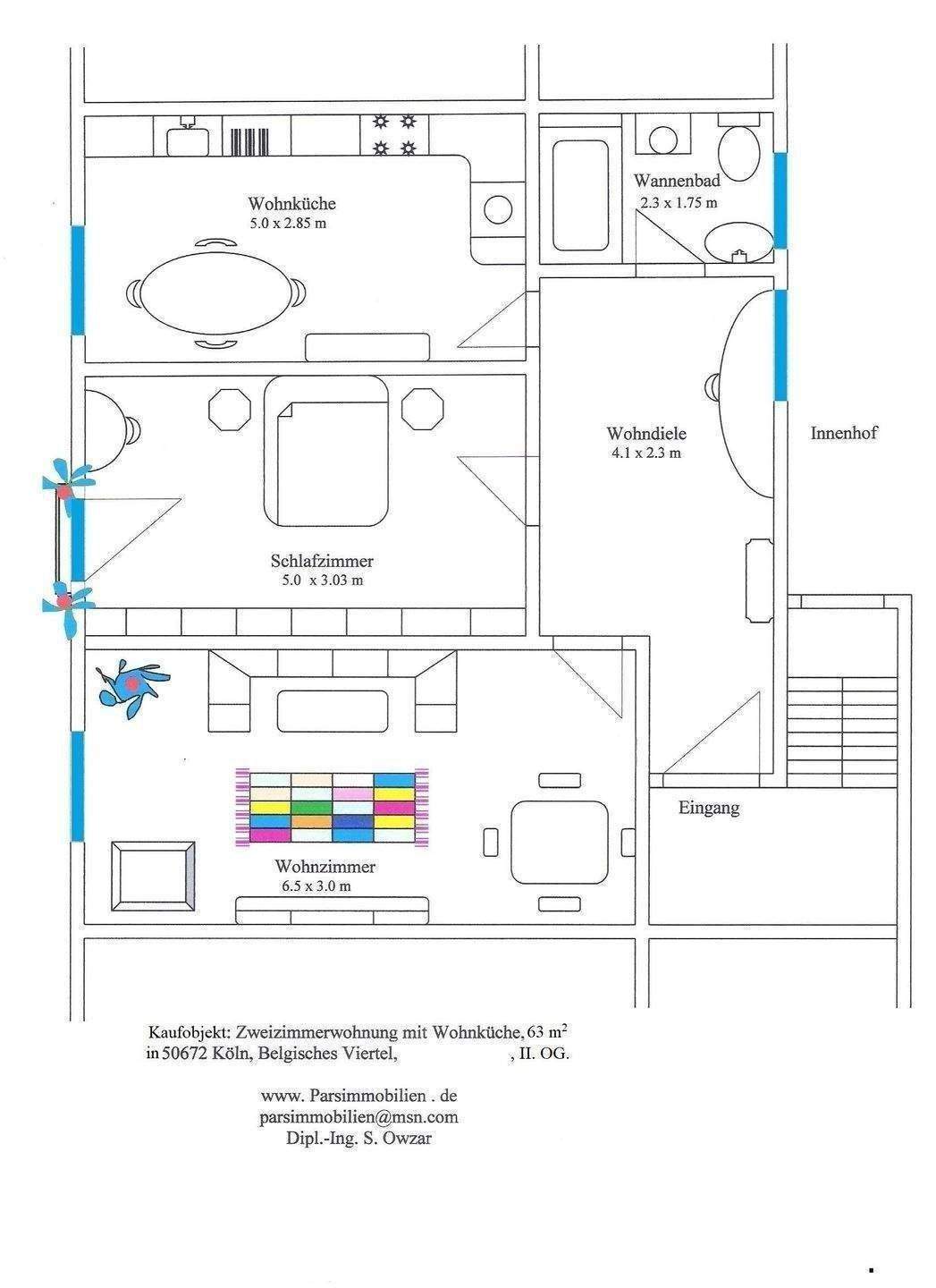
Die Zweizimmer-Wohnung mit großer Wohnküche und Wohndiele befindet sich im zweiten OG. -ohne Aufzug- eines in den 80/90-ern sanierten Altbau-Hauses aus den 50-ern, mit 24 Wohnungen und zwei Ladenlokals.Das Treppenhaus wurde 2004 saniert.Die Wohnung ist ca. 64 m2 groß und lichtdurchflutet.Die Wohnung ist seit März 2023 an eine Junge Frau vermietet.Nettomiete EUR 925, zzgl. EUR 40,- EBK, und umlagefähige Nebenkosten EUR 130,-; insgesamt EUR 1.095; zzgl. Gasetagenheizung.Ähnliche Angebote
So funktioniert es
- Alle neuen Anzeigen matchen wir kostenlos mit Deinen Suchparametern.
- Passende Angebote senden wir Dir in einer E-Mail pro Tag.
- Du kannst auch verschiedene Suchen anlegen und Dich jederzeit abmelden. Mehr dazu




