Kaufpreis 549.000 €
Zimmer 4
Größe 100 m²
40474 Düsseldorf
Objektdaten
Veröffentlicht am: 29. Januar 2026
Baujahr: 2016
Energieausweis: Liegt bei der Besichtigung vor
Danke! Bitte bestätige Deine E-Mail-Adresse – wir haben Dir soeben eine Mail geschickt.
Es gab ein Problem beim Absenden. Bitte versuche es erneut.
Bitte bestätige Deine E-Mail-Adresse, um Updates zu erhalten.
Objektbeschreibung
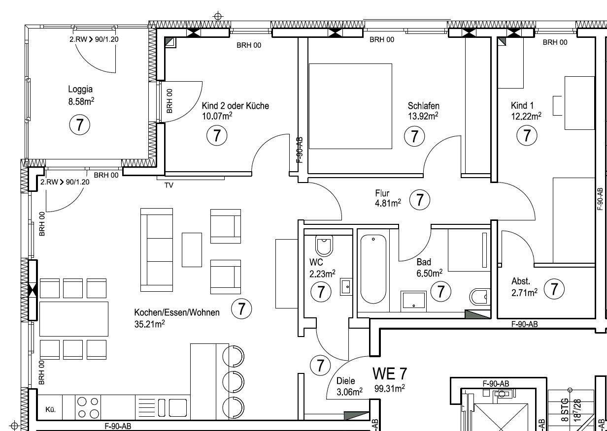
Zum Verkauf steht eine exklusive Eigentumswohnung, gelegen im 1. Obergeschoss eines repräsentativen und modernen Mehrfamilienhauses aus dem Jahr 2016 in der begehrten Wohngegend Düsseldorf-Lohausen.Dieses außergewöhnliche Domizil bietet auf einer großzügigen Wohnfläche von rund 100 Quadratmetern vier Zimmer, die viel Platz für individuelles und behagliches Wohnen bieten.Die Eigentumswohnung ist ideal für Paare mit bis zu zwei Kindern, verfügt über ein modernes Badezimmer mit Fenster, Badewanne und Dusche. Ein weiteres Highlight ist der großzügige und helle Loggia mit Verglasung, welche den Wohnraum erweitert und zu gemütlichen Abenden einlädt, um das ganze Jahr über das besondere Ambiente der Eigentumswohnung zu genießen.Hochwertiges Parkett in den Räumen steigert den Wohnkomfort zusätzlich. Das moderne Haus besticht durch seine herausragende Energieeffizienz, unterstützt von einer fortschrittlichen Gaszentralheizung. Diese sorgt nicht nur für eine gleichmäßige und behagliche Wärme durch Fußbodenheizung in allen Räumen, sondern gewährleistet auch die Warmwasserversorgung effizient und umweltschonend.Laut Energieausweis erfüllt das Haus die Energieeffizienzklasse A mit einem niedrigen Endenergiebedarf von nur 49 kWh/(m²·a), was die Nachhaltigkeit und Wirtschaftlichkeit des Wohnens in diesem Gebäude unterstreicht.Besonderes Augenmerk wurde auf die Wohnqualität gelegt, indem Schallschutzfenster höchster Güte eingebaut wurden, um möglichen Beeinträchtigungen durch die Nähe zum Flughafen effektiv entgegenzuwirken. Ein Kellerabteil gehört ebenfalls zum Wohnangebot. Für die Aufstellung einer Waschmaschine und eines Trockners steht eine Waschküche zur Verfügung, die mit Anschlüssen versehen ist, die jeweils über einen eigenen Wasser- und Stromzähler verfügen.Das Gebäude umfasst insgesamt neun Wohneinheiten auf einer Gebäudenutzfläche von 959m² und bietet mit seiner Architektur sowie den naturnahen Grünflächen in der Umgebung eine hohe Lebensqualität.Die Gemeinschaft innerhalb des Mehrfamilienhauses ist hervorragend, mit einem generellen und vertrauensvollen Miteinander unter den Bewohnern. Zu der Wohnung gehören zwei KFZ-Stellplätze, die für jeweils 20.000 € mit angeboten werden.Die Wohnung ist sofort bezugsfrei. Nach dem Auszug wurde die gesamte Wohnung frisch gestrichen und der hochwertige Parkettboden von einer Spezialfirma neu abgeschliffen und saniert.Wir freuen uns darauf, Ihnen in einem persönlichen Besichtigungstermin die Einzigartigkeit und den Charme dieser exklusiven Wohnung vorzustellen. Erleben Sie selbst, wie die Kombination aus modernem Komfort, durchdachter Architektur, hervorragender Energieeffizienz und einer harmonischen Wohnatmosphäre in dieser begehrten Lage Ihr neues Zuhause werden könnte.
So funktioniert es
- Alle neuen Anzeigen matchen wir kostenlos mit Deinen Suchparametern.
- Passende Angebote senden wir Dir in einer E-Mail pro Tag.
- Du kannst auch verschiedene Suchen anlegen und Dich jederzeit abmelden. Mehr dazu
Wir haben soeben eine E-Mail mit Deinem Suchauftrag an Dich geschickt. – Klicke in dieser Mail auf den Bestätigungslink und schon geht's los. Prüfe ggf. auch Deinen Spamordner.
Es gab ein Problem beim Absenden Deiner E-Mail-Adresse. Bitte versuche es erneut.
WARNUNG: Bitte bestätige Deine E-Mail-Adresse, um regelmäßige Updates zu erhalten.