Objektdaten
Objektbeschreibung
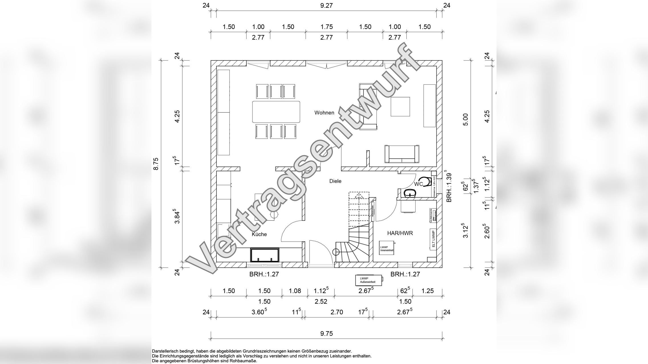
Projektierter Neubau eines massiv gebauten Einfamilienhauses vom Haustyp Flair 125. Das Flair 125 überzeugt durch ein großzügiges Raumkonzept mit fünf Zimmern und bietet ideale Voraussetzungen für Familien oder Paare mit Homeoffice-Bedarf. Die Netto-Raumfläche beträgt ca. 135,74 m² (nach DIN 277) und verteilt sich auf zwei Vollgeschosse. Im Erdgeschoss befindet sich der offen gestaltete Wohn- und Essbereich mit angrenzender Küche, ergänzt durch ein Gäste-WC, Diele und Hausanschlussraum. Das Dachgeschoss bietet drei Schlafzimmer, ein Gäste-/Arbeitszimmer sowie ein Tageslichtbad mit Badewanne und Dusche. Beheizt wird das Haus über eine zentrale Luft-/Wasser-Wärmepumpe mit Fußbodenheizung. Das Gebäude wird im Effizienzhaus-55-Standard errichtet. Der angegebene Kaufpreis in Höhe von 294.900 € bezieht sich ausschließlich auf das Haus inklusive der beschriebenen Ausstattung. Das Grundstück ist nicht im Hauspreis enthalten und wird separat erworben.Ähnliche Angebote
So funktioniert es
- Alle neuen Anzeigen matchen wir kostenlos mit Deinen Suchparametern.
- Passende Angebote senden wir Dir in einer E-Mail pro Tag.
- Du kannst auch verschiedene Suchen anlegen und Dich jederzeit abmelden. Mehr dazu




