Objektdaten
Objektbeschreibung
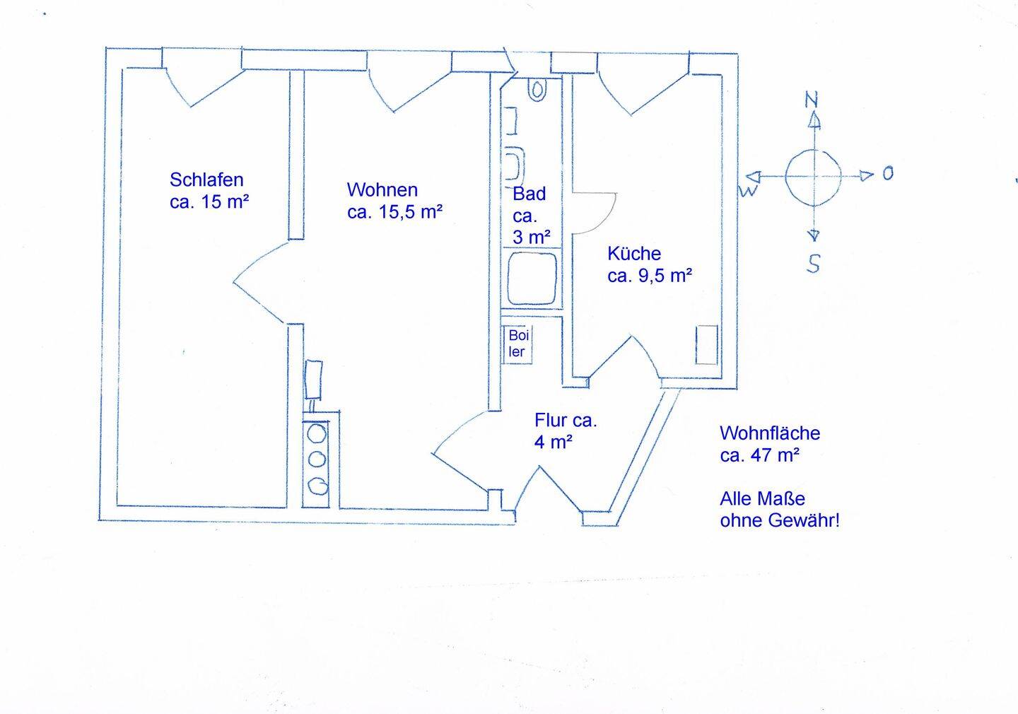
Willkommen Zuhause! Diese hübsche Wohnung mit einer Wohnfläche von insgesamt 53,8 m² Wohnfläche wird aktuell komplett renoviert. Im Flur, im Badezimmer sowie in der Küche wird ein dunkler Fliesenboden verlegt. Das Wohn- und Schlafzimmer wird mit einem Parkettboden ausgestattet. Die elektrische Anlage in der Wohnung wird vollständig erneuert und die Wand- und Deckenflächen sodann in weiß gestrichen. Im Badezimmer erwarten Sie neue Sanitäre Anlagen (Waschbecken, Badewanne, Toilette, Handtuchheizkörper) und in der Küche steht Ihnen zum Einzug eine nagelneue Einbauküche mit Ceranfeld, Backofen, Dunstabzugshaube, Spülmaschine und Kühlschrank zur Verfügung (ohne Aufpreis oder Ablsöe). Gerne zeigen wir Ihnen bei der Besichtigung entsprechende Beispielbilder. Besichtigungen sind ab sofort möglich und wir freuen uns auf ein persönliches Kennenlernen!Ähnliche Angebote
So funktioniert es
- Alle neuen Anzeigen matchen wir kostenlos mit Deinen Suchparametern.
- Passende Angebote senden wir Dir in einer E-Mail pro Tag.
- Du kannst auch verschiedene Suchen anlegen und Dich jederzeit abmelden. Mehr dazu





