Objektdaten
Objektbeschreibung
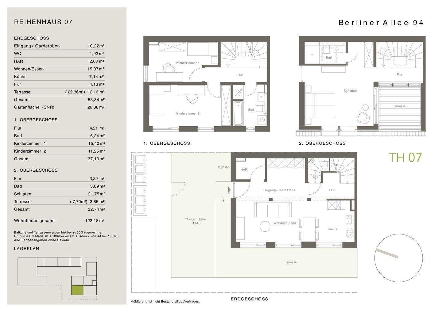
Das im Innenhof gelegene bezugsfertige Stadthaus 7 verfügt über 123 qm Wohnfläche zuzüglich 26qm Gartenfläche. Im EG befinden sich ein großzügiger Eingangsbereich, ein Gäste-WC, der HWR und der Koch-/Ess-/Wohnbereich. Im 1.OG befinden sich zwei Schlaf-/Kinder/Arbeitzimmer und das Tageslicht-Wannebad; Im 2.OG das Duschbad sowie das großzügige Elternschlafzimmer mit Zugang zur ca. 7,7qm großen Dachterrasse.Dank der bodentiefen Fenster sowie Oberlichtern in den Dachgeschossen genießen Sie viel Tageslicht, welches Ihr Zuhause in eine helle und friedliche Oase verwandelt.Helle Fassaden und großzügige Fensterflächen schaffen ein offenes, freundliches Erscheinungsbild. Die Ausstattung begeistert durch Qualität und Alltagstauglichkeit.Willkommen in der “Berliner Allee 94”, einer lebendigen Neubebauung mit einem sechsgeschossigen Gebäude, einer liebevoll restaurierten Remise und acht charmanten Stadthäusern.Ähnliche Angebote
So funktioniert es
- Alle neuen Anzeigen matchen wir kostenlos mit Deinen Suchparametern.
- Passende Angebote senden wir Dir in einer E-Mail pro Tag.
- Du kannst auch verschiedene Suchen anlegen und Dich jederzeit abmelden. Mehr dazu



