Kaufpreis 814.000 €
Zimmer 11
Größe 219 m²
64297 Darmstadt
Objektdaten
Veröffentlicht am: 1. Februar 2026
Baujahr: 1930
Energieausweis: Liegt bei der Besichtigung vor
Danke! Bitte bestätige Deine E-Mail-Adresse – wir haben Dir soeben eine Mail geschickt.
Es gab ein Problem beim Absenden. Bitte versuche es erneut.
Bitte bestätige Deine E-Mail-Adresse, um Updates zu erhalten.
Objektbeschreibung
Direktverkauf vom privaten Eigentümer – keine Käuferprovision
Dieses gepflegte, massiv gebaute und alleinstehende Zweifamilienhaus befindet sich in ruhiger, gesuchter Lage von Darmstadt-Eberstadt und wird direkt vom privaten Eigentümer verkauft – ohne Makler, ohne Aufschlag, ohne zusätzliche Käuferprovision.
Das Haus ist grundbuchlich in zwei separate Wohneinheiten aufgeteilt und eignet sich ideal für Familien, Mehrgenerationenwohnen oder Eigennutzer mit zusätzlicher Vermietung. Die separate Wohnung im Obergeschoss ist aktuell vermietet und erzielt 750 € Kaltmiete pro Monat, was die monatliche Finanzierung spürbar reduziert.
Die Immobilie wurde vor ca. 3 Jahren renoviert und ist sofort bezugsfertig – ohne Renovierungs- oder Modernisierungsbedarf. Zwei vorhandene Einbauküchen sind im Kaufpreis enthalten.
Eckdaten & Highlights:
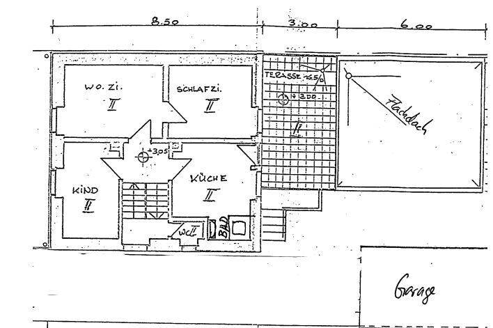
• 87 m² Wohnfläche im Erdgeschoss
• 87 m² wohnlich genutzter Keller (Souterrain)
• 45 m² separate Wohneinheit im OG
• Zwei Wohneinheiten (EG + OG) – getrennt im Grundbuch
• Zwei getrennte Eingänge
• Garten mit Terrasse, Markise & Holzpavillon
• Hochwertige KLAFS Sauna mit Ruhebereich & Außendusche
• Garage + 2 Stellplätze
• Gas-Zentralheizung (NEU in 2019)
• Bezugsfertig – Einziehen ohne Zusatzkosten
• Keine Käuferprovision – Direktverkauf vom Eigentümer
Die ruhige Wohnlage in Eberstadt bietet hohen Freizeitwert bei gleichzeitig sehr guter Infrastruktur: Schulen, Kitas, Einkaufsmöglichkeiten, ÖPNV und Autobahn sind fußläufig bzw. schnell erreichbar.
Privatverkauf – bitte keine Makler- / Vermittleranfragen !!!
Übergabe nach Absprache auch kurzfristig möglich.
Privatverkauf – keine Käuferprovision.
So funktioniert es
- Alle neuen Anzeigen matchen wir kostenlos mit Deinen Suchparametern.
- Passende Angebote senden wir Dir in einer E-Mail pro Tag.
- Du kannst auch verschiedene Suchen anlegen und Dich jederzeit abmelden. Mehr dazu
Wir haben soeben eine E-Mail mit Deinem Suchauftrag an Dich geschickt. – Klicke in dieser Mail auf den Bestätigungslink und schon geht's los. Prüfe ggf. auch Deinen Spamordner.
Es gab ein Problem beim Absenden Deiner E-Mail-Adresse. Bitte versuche es erneut.
WARNUNG: Bitte bestätige Deine E-Mail-Adresse, um regelmäßige Updates zu erhalten.